Back to properties

Industrial Units at Rotherham Close, Norwood Industrial Estate, Killamarsh, Sheffield S21 2JU

Industrial Units at Rotherham Close, Norwood Industrial Estate, Killamarsh, Sheffield S21 2JU

£950,000
Commercial
About this Property
2025-11-27
950000
Traditional
Commercial
Description

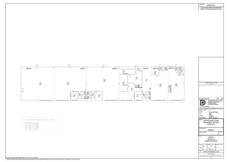
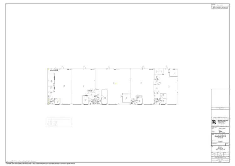
Commercial Property Property Description: A freehold industrial site located at Rotheram Close and let with a current gross income of £126,620 per annum. The site consists of two separate buildings with high eves, roller shutters and forecourt parking. The site is within a few minutes of M1 Junction 31 and a short distance from Sheffield. The site extends to 0.60 HA with a GIA of 22,981 sq.ft (or thereabouts). The site is fully let with the following rent roll - UNIT 1 Held on a 6 year lease commencing 01-04-22 and extends in total to 2,325 sq.ft with a current rent passing of £12,995 per annum. UNIT 2 Held on a 6 year lease commencing 18-11-19 and extends to 2,325 sq.ft with a current rent passing of £13,950 per annum. UNIT 3 Held on a 6 year lease commencing 03-05-24 and extends to 3,487 sq.ft with a current rent passing £20,950 per annum. UNIT 4 Held on a 6 year lease commencing 17-12-18 and extends to 2,325 sq.ft with a current rent passing £12,800 per annum. UNIT 5 Held on a 6 year lease commencing 01-07-24 and extends to 2,906 sq.ft with a current rent passing £18,395 per annum. UNITS 6 AND 7 Held on a 6 year lease commencing 01-02-22 and extends to 3,100 sq.ft in total with a current rent passing £17,050 per annum. UNIT 8 Held on a 6 year lease commencing 25-11-22 and extends to 1,550 sq.ft with a current rent passing £9,950 per annum. UNIT 9 Held on a 6 year lease commencing 01-11-24 and extends to 1,550 sq.ft with a current rent passing £10,650 per annum. UNITS 10 AND 11 Held on a 6 year lease commencing 15-08-24 and extends in total to 1,520 sq.ft with a current rent passing £9,880 per annum. Tenure: Freehold. See legal pack. Auction Details The sale of this property will take place on the stated date by way of Auction Event and is being sold under and Unconditional sale type. Binding contracts of sale will be exchanged at the point of sale. All sales are subject to SDL Property Auctions Buyers Terms. Properties located in Scotland will be subject to applicable Scottish law. Auction Deposit and Fees The following deposits and non- refundable auctioneers fee apply: • 10% deposit (subject to a minimum of £5,000) • Buyers Fee of £1,500 inc. VAT The Buyers Fee does not contribute to the purchase price, however it will be taken into account when calculating the Stamp Duty Land Tax for the property (known as Land and Buildings Transaction Tax for properties located in Scotland), because it forms part of the chargeable consideration for the property. There may be additional fees listed in the Special Conditions of Sale, which will be available to view within the Legal Pack. You must read the Legal Pack carefully before bidding. Additional Information For full details about all auction methods and sale types please refer to the Auction Conduct Guide which can be viewed on the SDL Property Auctions home page. This guide includes details on the auction registration process, your payment obligations and how to view the Legal Pack (and any applicable Home Report for residential Scottish properties). Guide Price & Reserve Price Each property sold is subject to a Reserve Price. The Reserve Price will be within + or - 10% of the Guide Price. The Guide Price is issued solely as a guide so that a buyer can consider whether or not to pursue their interest. A full definition can be found within the Buyers Terms.

Location
Industrial Units at Rotherham Close, Norwood Industrial Estate, Killamarsh, Sheffield S21 2JU
More Information
Freehold
Rotherham Close
Commercial Property
Planing Authority
North East Derbyshire LPA

Interested in this lot?

GO TO THIS LOT

More Listings from this Auctioneer

Other listings nearby