Back to properties

Holywell, Clwyd, CH8 7LS - Online Auctions

Talacre Arms Public House, New Road, Holywell, Clwyd, CH8 7LS

£150,000
Commercial
About this Property
2025-11-24
150000
Traditional
Commercial
Description

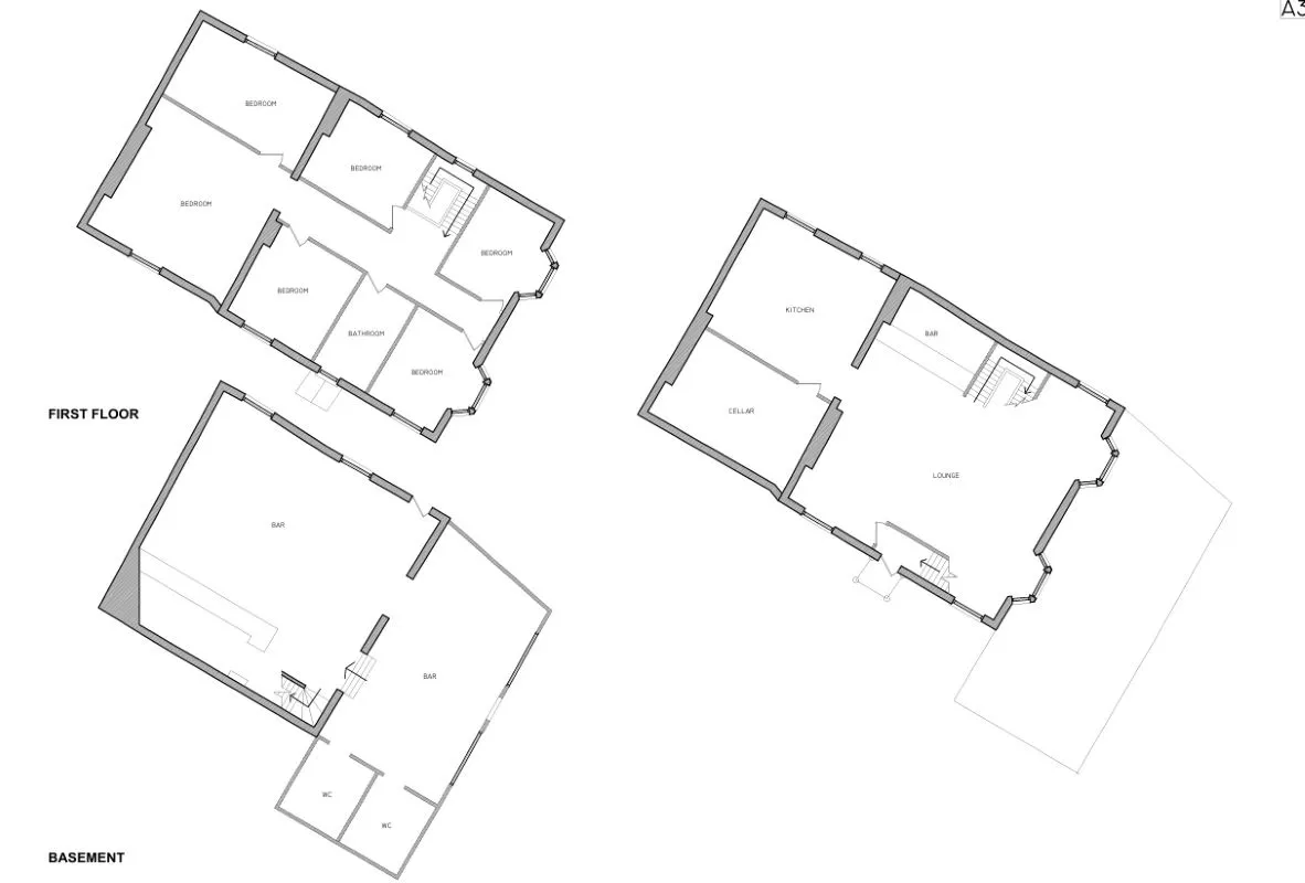
FOR SALE VIA ONLINE UNCONDITIONAL AUCTION. BIDDING OPENS MONDAY 24TH NOVEMBER & CLOSES TUESDAY 25TH NOVEMBER. PLANNING REFERENCE FUL/000726/24 RARE OPPORTUNITY GENEROUS OVERALL PLOT DEVELOPMENT OPPORTUNITY Title Number: See Legal Pack Epitome of Title Tenure: Freehold PLANNING APPLICATION for the adaptation of the existing Talacre Arms Public House building into four 2 bedroom self-contained apartments including one duplex unit and the erection of five new 3 bedroom dwellings and associated infrastructure including a detached bat mitigation building. Please visit the Flintshire Planning Portal and use the provide planning reference number to view all documents associated. We are verbally advised by our client that approval would be granted subject to payment of the section 106 as part of the application. Please carry out relevant due diligence to confirm the same. This indeed presents a rare opportunity, this premises has been owned for some time by the family and presents a perfect opportunity to really put a stamp on a local renowned property. VIEWINGS. For safety reasons internal inspections are limited or not available. No member of Auction House has been inside of the main pub building. REGISTER FOR LEGAL PACK AND BIDDING ON OUR WEBSITE. WWW. AUCTIONHOUSE.CO.UK PLEASE NOTE No appliances have been tested by Auction House. Any measurements or boundary illustrations are approximate. We recommend any would be bidders conduct their own due diligence in good time prior to the auction taking place. IMPORTANT INFORMATION Buying at auction is a contractual commitment, you are legally obliged to buy the lot on the terms of the sale memorandum at the price you bid. If you are the successful bidder, you are required to pay the deposit and auction fees immediately. As agent for the seller, we treat any failure to satisfy your obligations as your repudiation of the contract and the seller may then have a claim against you for breach of contract. You must not bid unless you wish to be bound by the common conditions of auction. Any purchasers choosing to buy without viewing in person are doing so at their own risk and acknowledge that the auctioneer will not be held responsible for any issues that may arise due to them being unintentionally missed from the video or sales particulars.

Location
Holywell, Clwyd, CH8 7LS - Online Auctions
More Information
Freehold
New Road
Commercial
Planing Authority
Flintshire

Interested in this lot?

GO TO THIS LOT

More Listings from this Auctioneer

Other listings nearby