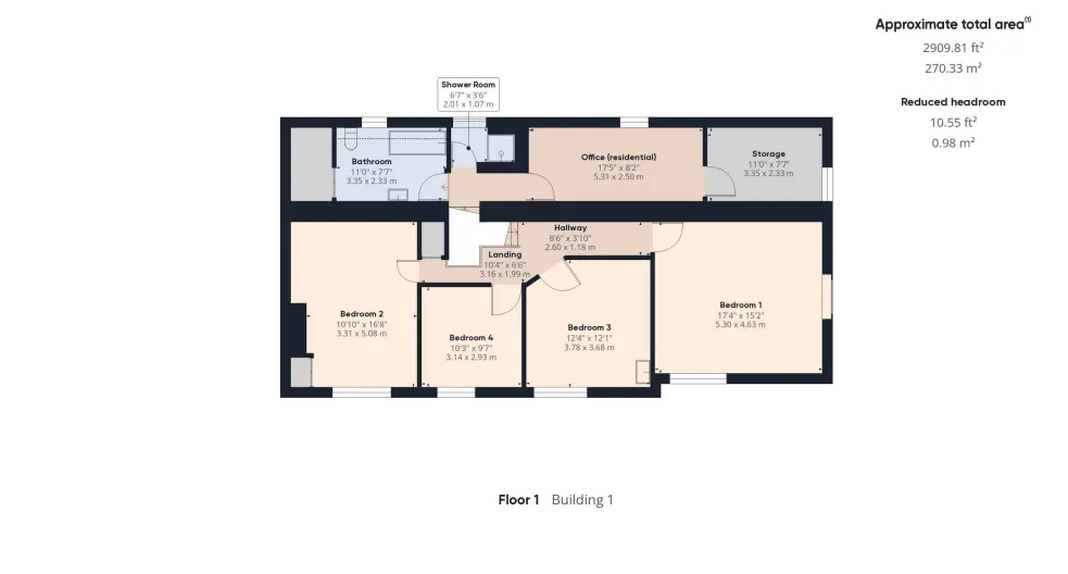
A charming 17th-century public house, The Laurels Inn (previously The White Hart) enjoys a prime position at the heart of the village, beside the church. Rich in history, the property has served as a coaching inn, private residence and since to 1970's, as a much-loved pub and restaurant. Recent improvements include a new roof, refreshed flooring, and the addition of a characterful multi-fuel burner. The pub has now ceased trading and presents an exceptional opportunity for a new owner to shape its future. The property provides generous private accommodation with 4–5 bedrooms, a spacious living room with sweeping countryside views and ample parking. Outside, the beer garden offers a delightful setting with picnic benches and covered seating, perfect for relaxing and entertaining. An adjoining former cottage provides additional storage or the potential for expansion. Run as a successful family business since 2017, The Laurels Inn attracted locals, walkers, and cyclists from the nearby Tarka Trail. With scope for further development (STPP), the property offers versatile potential for an inspiring lifestyle change in the heart of the countryside. Auctioneer comments This property is for sale by the Modern Method of Auction, meaning the buyer and seller are to Complete within 56 days (the "Reservation Period"). Interested parties personal data will be shared with the Auctioneer (iamsold). If considering buying with a mortgage, inspect and consider the property carefully with your lender before bidding. A Buyer Information Pack is provided. The winning bidder will pay £300.00 including VAT for this pack which you must view before bidding. The buyer signs a Reservation Agreement and makes payment of a non-refundable Reservation Fee of 4.5% of the purchase price including VAT, subject to a minimum of £6,600.00 including VAT. This is paid to reserve the property to the buyer during the Reservation Period and is paid in addition to the purchase price. This is considered within calculations for Stamp Duty Land Tax. Services may be recommended by the Agent or Auctioneer in which they will receive payment from the service provider if the service is taken. Any payment that will be received by the Agent or Auctioneer will be confirmed to you in writing before services are taken. Services are optional.