Back to properties

Lot 154 - 25 Constitution Hill, Swansea, West Glamorgan, SA1 6JA

Constitution Hill, Swansea, West Glamorgan, SA1 6JA

£72,000
Residential
About this Property
2025-11-26
72000
Modern
Residential
Description

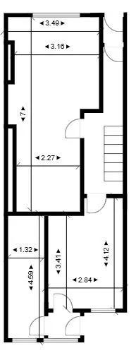
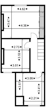
AUCTION REGISTRATION IS NOW OPEN. ALL BIDDERS PAY A HOLDING FEE IN ORDER TO BID IN THE ONLINE AUCTION. THE WINNING BIDDER WILL BE REQUIRED TO PAY THE DEPOSIT WHICH IS 10% OF THE FINAL BID AND THEIR HOLDING FEE IS RETAINED BY THE AUCTIONEERS. IF SOLD PRIOR TO AUCTION NO HOLDING FEE APPLIES BUT A BUYERS’ PREMIUM IS REQUIRED TO EXCHANGE. COMPLETION WILL BE 28 DAYS AFTER EXCHANGE. (UNLESS STATED DIFFERENT ON THE CONTRACT) *** PRE-AUCTION OFFERS WELCOME*** We have for sale by Online Auction a three-bedroom mid-terrace house with a through reception room, kitchen-dining room and family bathroom. Please see the floorplans to appreciate the room sizes. The property requires renovation and offers an excellent investment opportunity. Externally there is a paved enclosed garden to the rear. Located close to the city centre, local amenities, shops and schools. Tenure: Freehold Council Tax: TBC EPC: D GROUND FLOOR Entrance hallway: Stairs to first floor. Reception room: 7.0m x 3.49m (max to alcove) – 7.0m x 2.27m (min) - uPVC double glazed window to front Kitchen: 4.12m x 2.84m (max) – 3.41 x 2.84m (min) - uPVC double glazed window to rear. Bathroom: 4.59m x 1.32m - uPVC double glazed window to rear. FIRST FLOOR Bedroom One: 4.62m x 3.47m (max to alcove) – 4.38m x 3.47m (min) – uPVC double glazed window to font. Bedroom Two: 3.53m x 3.01m (max to alcove) – 3.52m x 2.72m (min) - uPVC double glazed window to rear. Bedroom Three: 3.41m x 3.06m - uPVC double glazed window to rear. EXTERNALLY Paced garden to rear PLEASE NOTEIt is the responsibility of all purchasers to conduct their own investigation into all aspects of the property and seek legal advice. The Legal Pack will be available on our website prior to bidding commencing. Please note legal packs can be downloaded through The Property Auction House website. www.thepropertyauctionhouse.com PAYMENTS To bid online you will be required to pay a holding fee this will only be withdrawn from your account should you be the successful bidder.  To exchange you will be required to pay a 10% deposit and sign the contract within 24 hours and complete the transaction paying the balance of funds within 28 days, (this timescale may vary always read the contract in the Legal Pack for confirmation).We always strongly recommend ensuring your finances are in place prior to the auction, due to the timescales involved. A buyer’s premium fee is only payable should a property be sold pre auction, this fee is 2% subject to a minimum fee of £4,000 +VAT

Location
Lot 154 - 25 Constitution Hill, Swansea, West Glamorgan, SA1 6JA
More Information
Freehold
Constitution Hill
Planing Authority
Swansea

Interested in this lot?

GO TO THIS LOT

More Listings from this Auctioneer