Back to properties

Lot 134 - 36 Brunant Road, Gorseinon, Swansea, West Glamorgan, SA4 4FL

Brunant Road, Gorseinon, Swansea, West Glamorgan, SA4 4FL

£227,000
Residential
About this Property
2025-11-19
227000
Modern
Residential
Description

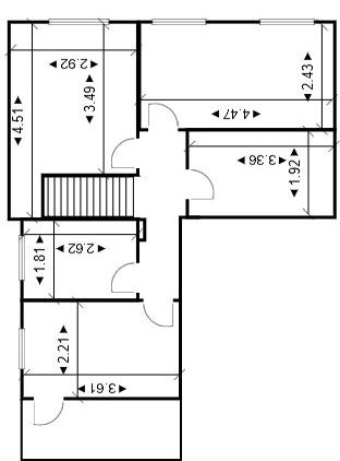
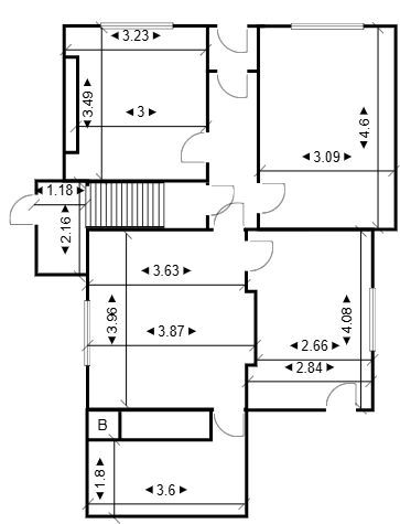
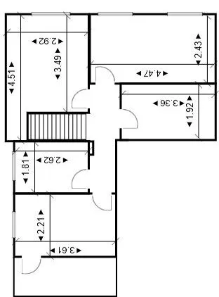
AUCTION REGISTRATION IS NOW OPEN. ALL BIDDERS PAY A HOLDING FEE IN ORDER TO BID IN THE ONLINE AUCTION. THE WINNING BIDDER WILL BE REQUIRED TO PAY THE DEPOSIT WHICH IS 10% OF THE FINAL BID AND THEIR HOLDING FEE IS RETAINED BY THE AUCTIONEERS. IF SOLD PRIOR TO AUCTION NO HOLDING FEE APPLIES BUT A BUYERS’ PREMIUM IS REQUIRED TO EXCHANGE. COMPLETION WILL BE 28 DAYS AFTER EXCHANGE. (UNLESS STATED DIFFERENT ON THE CONTRACT) *** PRE-AUCTION OFFERS WELCOME*** We have for sale by Online Auction a property in Gorseinon containing two self contained two-bedroom flats. The downstairs flat consists of two bedrooms, a living room, kitchen and bathroom. On the first floor are two bedrooms, a living room, bathroom, kitchen and balcony. Externally there’s a garden to the front and garden and patio area to the rear. Located close to Gower College Gorseinon and busy Gorseinon centre. The first floor flat is currently tenanted at £725 pcm. Tenure: Freehold Council Tax: A, A EPC: D, C GROUND FLOOR Entrance hallway Bedroom 1: 4.6m x 3.09m - uPVC double glazed window to front. Bedroom 2: 3.49m x 3.23m (max) – 3.49m x 3m (min) - uPVC double glazed window to front. Living room: 3.96m x 3.87m (max) – 3.96m x 3.36m (min) uPVC double glazed window to side. Kitchen: 4.08m x 2.84m (max) – 4.08m x 2.66m (min) - uPVC double glazed window to side, Fitted wall and base units, stainless steel sink unit, access to rear garden. Bathroom: 3.6m x 1.8m - uPVC double glazed window to rear. FIRST FLOOR Entrance: porch and stairs to second floor. Living room: 4.51m x 2.92m (max) – 3.49m x 2.92m (min) – uPVC window to front. Bedroom 1: 4.47m x 2.43m - uPVC window to front. Bedroom Two: 3.36m x 1.96m - uPVC Velux roof window. Bathroom: 2.62m x 1.81m - uPVC double glazed window to side. Kitchen: 3.36m x 2.21m – uPVC double glazed window to side and access to rear balcony EXTERNALLY Patio Gardens to front and rear PLEASE NOTE It is the responsibility of all purchasers to conduct their own investigation into all aspects of the property and seek legal advice. The Legal Pack will be available on our website prior to bidding commencing. Please note legal packs can be downloaded through The Property Auction House website. www.thepropertyauctionhouse.com PAYMENTS To bid online you will be required to pay a holding fee this will only be withdrawn from your account should you be the successful bidder. To exchange you will be required to pay a 10% deposit and sign the contract within 24 hours and complete the transaction paying the balance of funds within 28 days, (this timescale may vary always read the contract in the Legal Pack for confirmation).We always strongly recommend ensuring your finances are in place prior to the auction, due to the timescales involved. A buyer’s premium fee is only payable should a property be sold pre auction, this fee is 2% subject to a minimum fee of £4,000 +VAT

Location
Lot 134 - 36 Brunant Road, Gorseinon, Swansea, West Glamorgan, SA4 4FL
More Information
Freehold
Brunant Road
Planing Authority
Swansea

Interested in this lot?

GO TO THIS LOT

More Listings from this Auctioneer

Other listings nearby