Back to properties

Lot 144 - 32 Pentrechwyth Road, Pentrechwyth, Swansea, West Glamorgan, SA1 7AA

Pentrechwyth Road, Pentrechwyth, Swansea, West Glamorgan, SA1 7AA

£170,000
Residential
About this Property
2025-11-05
170000
Modern
Residential
Description

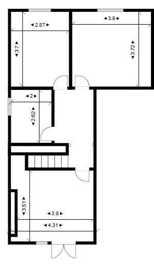
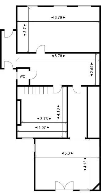
AUCTION REGISTRATION IS NOW OPEN. ALL BIDDERS PAY A HOLDING FEE IN ORDER TO BID IN THE ONLINE AUCTION. THE WINNING BIDDER WILL BE REQUIRED TO PAY THE DEPOSIT WHICH IS 10% OF THE FINAL BID AND THEIR HOLDING FEE IS RETAINED BY THE AUCTIONEERS. IF SOLD PRIOR TO AUCTION NO HOLDING FEE APPLIES BUT A BUYERS’ PREMIUM IS REQUIRED TO EXCHANGE. COMPLETION WILL BE 28 DAYS AFTER EXCHANGE. (UNLESS STATED DIFFERENT ON THE CONTRACT) *** PRE-AUCTION OFFERS WELCOME*** We have for sale by Online Auction a three-bedroom end of terrace house with two/three reception rooms, kitchen diner, family bathroom and WC. Externally to the rear there is a patio area and steps down to an enclosed garden and parking area. In a popular residential area, located close to local amenities, shops and schools. Please note there is Japanese Knotweed to the rear of the property. Tenure: Freehold (FLYING FREEHOLD PLEASE SEE PACK) Council Tax: A EPC: TBC GROUND FLOOR Entrance: Porch Kitchen diner: 6.79m x 3.7m - Three uPVC double glazed window to front Hallway/Reception room one: 6.78m x 2.59m (max) - Skylight. WC: 1.34m x 0.9m - uPVC double glazed window to side. Reception room two: 5.3m x 4.15m (max) – 5.3m x 3.46m (min) - uPVC double glazed window to side and rear. Reception room three: 4.18m x 4.07m (max) – 4.18m x 3.73m (min) – uPVC double glazed window to rear, stairs to first floor. FIRST FLOOR Bedroom One: 4.08m x 3.51m (max) – 3.8m x 3.51m (min) – uPVC window and patio doors to rear. Bedroom Two: 3.90m x 3.72m - uPVC double glazed window to front, vaulted ceiling. Room Three: 3.7m x 2.87m - uPVC double glazed window to front. Bathroom: 2.62m x 2.0m – uPVC double glazed window to side. EXTERNALLY Patio area with steps down to enclosed garden and parking area. PLEASE NOTE It is the responsibility of all purchasers to conduct their own investigation into all aspects of the property and seek legal advice. The Legal Pack will be available on our website prior to bidding commencing. Please note legal packs can be downloaded through The Property Auction House website. www.thepropertyauctionhouse.com PAYMENTS To bid online you will be required to pay a holding fee this will only be withdrawn from your account should you be the successful bidder. To exchange you will be required to pay a 10% deposit and sign the contract within 24 hours and complete the transaction paying the balance of funds within 28 days, (this timescale may vary always read the contract in the Legal Pack for confirmation).We always strongly recommend ensuring your finances are in place prior to the auction, due to the timescales involved. A buyer’s premium fee is only payable should a property be sold pre auction, this fee is 2% subject to a minimum fee of £4,000 +VAT

Location
Lot 144 - 32 Pentrechwyth Road, Pentrechwyth, Swansea, West Glamorgan, SA1 7AA
More Information
Leasehold
Pentre-Chwyth Road
Planing Authority
Swansea

Interested in this lot?

GO TO THIS LOT

More Listings from this Auctioneer

Other listings nearby