Coleshill Terrace, Llanelli, Dyfed, SA15 3DA

Coleshill Terrace, Llanelli, Dyfed, SA15 3DA

£1,000
Residential
Withdrawn
About this Property
2025-08-12
Withdrawn
£1,000
Modern
Residential
Description

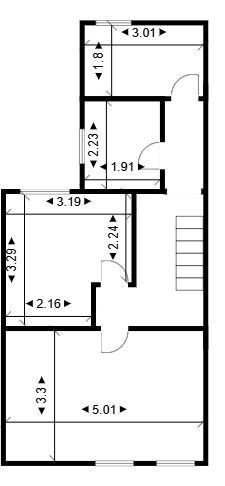
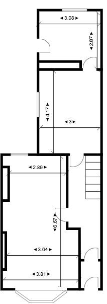
The property is a three-bedroom terraced house located close to Llanelli town centre. It features a through lounge-dining room, kitchen, utility room on the ground floor, and three bedrooms with a family bathroom on the first floor. Externally, there is off-road parking and a paved garden at the rear. The property includes a total floor area with specific room measurements provided. It has residential parking in front and is within walking distance of local amenities. The tenure is freehold. The energy performance certificate rating is D.

Location
Coleshill Terrace, Llanelli, Dyfed, SA15 3DA
More Information
Freehold
Coleshill Terrace
Planning Authority
Carmarthenshire

Interested in this lot?

GO TO THIS LOT
DISCLAIMER

No Affiliation: PropertyAuctions.io is an independent service and is not affiliated with, endorsed by, or connected to any auction house, auctioneer, or property owner listed on this site.

Information Accuracy: All property information, including auction dates, descriptions, images, and pricing, is provided for informational purposes only and may contain errors or be outdated. We make no guarantee regarding accuracy or completeness.

Third-Party Content: Property images and descriptions are sourced from publicly available information. We do not claim ownership of content that may be copyrighted by auction houses or other parties.

Your Responsibility: You must verify all information directly with the relevant auction house before bidding or making any decisions. PropertyAuctions.io is not liable for any errors, omissions, or losses arising from use of this website. Report Issues: If you spot an error or have copyright concerns, please report it here.

View Full Terms and Conditions

More Listings from this Auctioneer

Other listings nearby