Back to properties

Lot 158 - 162 Port Tennant Road, Port Tennant, Swansea, West Glamorgan, SA1 8JQ

Port Tennant Road, Port Tennant, Swansea, West Glamorgan, SA1 8JQ

£155,000
Mixed Use
About this Property
2026-01-21
155000
Modern
Mixed Use
Description

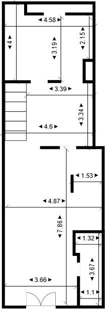
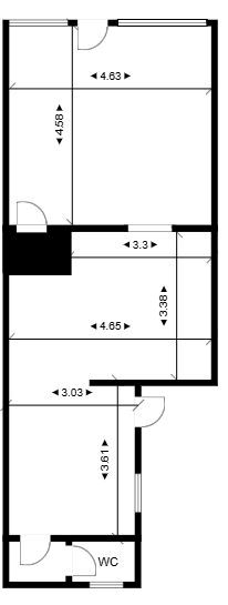
AUCTION REGISTRATION IS NOW OPEN. ALL BIDDERS PAY A HOLDING FEE IN ORDER TO BID IN THE ONLINE AUCTION. THE WINNING BIDDER WILL BE REQUIRED TO PAY THE DEPOSIT WHICH IS 10% OF THE FINAL BID AND THEIR HOLDING FEE IS RETAINED BY THE AUCTIONEERS. IF SOLD PRIOR TO AUCTION NO HOLDING FEE APPLIES BUT A BUYERS’ PREMIUM IS REQUIRED TO EXCHANGE. COMPLETION WILL BE 28 DAYS AFTER EXCHANGE. (UNLESS STATED DIFFERENT ON THE CONTRACT) *** PRE-AUCTION OFFERS WELCOME*** We have for sale by online auction a former fish & chip shop and restaurant with A1 class use, with a two bed flat above and a basement dining area. The freehold property consists of, ground floor kitchen, shop front wash/prep room and wc. Stairs to the basement which was previously used as the restaurant seating area and storage with access to the back yard and lane. To the first-floor there is a flat with two bedrooms, reception room, kitchen and bathroom. Externally there is a rear garden/parking area with access to the rear lane. Property offers an excellent opportunity to establish a takeaway or restaurant business in a popular area, with the added benefit of the separate flat for further income or habitation. Tenure: Freehold Council Tax (Flat): A EPC: TBC GROUND FLOOR Shop: 4.63m x 4.58m - uPVC double glazed windows to front. Kitchen: 4.65m x 3.38m (max) – 3.38m x 3.3m (min) Prep room: 3.61m x 3.03m - uPVC double glazed window to side. WC FIRST FLOOR FLAT Living room: 5.08m x 3.44m (max to alcove) – 4.71m x 3.44m (min) - uPVC double glazed bay window to front. Kitchen: 3.9m x 1.75m Bedroom One: 3.46 x 3.21m (max to alcove) – 3.46m x 2.85m (min) - uPVC window to rear. Bedroom Two: 3.1m x 2.57m (max) – 3.1m x 2.07m (min) - uPVC double glazed window to rear. Bathroom: 2.11m x 1.46m – uPVC double glazed window to side. BASEMENT Room 1: 4.0m x 4.58m (max) – 4.58m x 3.19m (min) Room 2: 4.6m x 3.34m (max) – 3.39m x 3.34m (min) Room 3: 4.87m x 4.11m (max) – 4.11m x 1.53m (min) Room 4: 7.86m x 4.87m (max) – 7.86m x 3.66m (min) Room 5: 3.67m x 1.32m (max) – 3.67m x 1.1m (min) EXTERNALLY Rear access to flat and alley PLEASE NOTE It is the responsibility of all purchasers to conduct their own investigation into all aspects of the property and seek legal advice. The Legal Pack will be available on our website prior to bidding commencing. Please note legal packs can be downloaded through The Property Auction House website. www.thepropertyauctionhouse.com PAYMENTS To bid online you will be required to pay a holding fee this will only be withdrawn from your account should you be the successful bidder.  To exchange you will be required to pay a 10% deposit and sign the contract within 24 hours and complete the transaction paying the balance of funds within 28 days, (this timescale may vary always read the contract in the Legal Pack for confirmation).We always strongly recommend ensuring your finances are in place prior to the auction, due to the timescales involved. A buyer’s premium fee is only payable should a property be sold pre auction, this fee is 2% subject to a minimum fee of £4,000 +VAT

Location
Lot 158 - 162 Port Tennant Road, Port Tennant, Swansea, West Glamorgan, SA1 8JQ
More Information
Freehold
Port Tennant Road
Planing Authority
Swansea

Interested in this lot?

GO TO THIS LOT

More Listings from this Auctioneer

Other listings nearby