Back to properties

Lot 148 - 13 Gelli Street, Port Tennant, Swansea, West Glamorgan, SA1 8NJ

Gelli Street, Port Tennant, Swansea, West Glamorgan, SA1 8NJ

£125,000
Residential
About this Property
2025-11-19
125000
Modern
Residential
Description

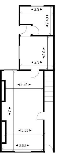
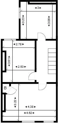
AUCTION REGISTRATION IS NOW OPEN. ALL BIDDERS PAY A HOLDING FEE IN ORDER TO BID IN THE ONLINE AUCTION. THE WINNING BIDDER WILL BE REQUIRED TO PAY THE DEPOSIT WHICH IS 10% OF THE FINAL BID AND THEIR HOLDING FEE IS RETAINED BY THE AUCTIONEERS. IF SOLD PRIOR TO AUCTION NO HOLDING FEE APPLIES BUT A BUYERS’ PREMIUM IS REQUIRED TO EXCHANGE. COMPLETION WILL BE 28 DAYS AFTER EXCHANGE. (UNLESS STATED DIFFERENT ON THE CONTRACT) *** PRE-AUCTION OFFERS WELCOME*** We have for sale by Online Auction a three-bedroom mid terrace house with through living dining room, kitchen, and family bathroom. Property is currently let at £800pcm and has up to date gas and electrical certificates available in the legal pack. Externally there is a paved garden, shed and lane access to the rear. Located in the popular residential area of Port Tenant, close to local amenities, shops, and schools. Property is an excellent addition to any rental portfolio and offers instant income to the new owner. Tenure: Freehold. Council Tax: B EPC: C GROUND FLOOR Entrance hallway: Stairs to first floor. Reception room: 7.0m x 3.63m (max to alcove) x 3.03m - uPVC double glazed window to front Kitchen: 4.09m x 3.57m - uPVC double glazed window to rear. Bathroom: 3.65m x 2.60m - uPVC double glazed window to side. FIRST FLOOR Landing: Loft access Bedroom One: 4.62m x 3.22m (max to alcove) – 4.38m x 3.22m (min) – two uPVC windows to font. Bedroom Two: 3.61m x 2.78m (max to alcove) – 3.61m x 2.53m (min) - uPVC double glazed window to rear. Bedroom Three: 3.23m x 3.0m (max to alcove) – 3.08m x 3.0m (min) - uPVC double glazed window to side. EXTERNALLY Paved rear garden, shed and rear lane access. PLEASE NOTE It is the responsibility of all purchasers to conduct their own investigation into all aspects of the property and seek legal advice. The Legal Pack will be available on our website prior to bidding commencing. Please note legal packs can be downloaded through The Property Auction House website. www.thepropertyauctionhouse.com PAYMENTS To bid online you will be required to pay a holding fee this will only be withdrawn from your account should you be the successful bidder. To exchange you will be required to pay a 10% deposit and sign the contract within 24 hours and complete the transaction paying the balance of funds within 28 days, (this timescale may vary always read the contract in the Legal Pack for confirmation).We always strongly recommend ensuring your finances are in place prior to the auction, due to the timescales involved. A buyer’s premium fee is only payable should a property be sold pre auction, this fee is 2% subject to a minimum fee of £4,000 +VAT

Location
Lot 148 - 13 Gelli Street, Port Tennant, Swansea, West Glamorgan, SA1 8NJ
More Information
Freehold
Gelli Street
Planing Authority
Swansea

Interested in this lot?

GO TO THIS LOT

More Listings from this Auctioneer