Back to properties

Property for Auction in Hull & East Yorkshire - The Cross Keys, Moor End, Holme-on-spalding-Moor, North Yorkshire

The Cross Keys, Moor End, Holme-on-spalding-Moor, North Yorkshire, YO43 4DR

£300,000
Commercial
About this Property
2025-10-01
300000
Traditional
Commercial
Description

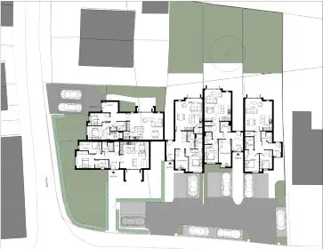
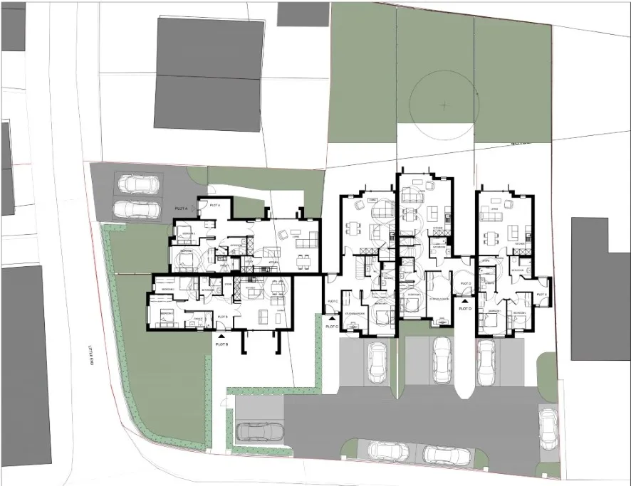
A former pub with full planning permission for demolition and replacement with five new dwellings. This excellent redevelopment opportunity comprises a former public house on a site of approximately 0.4 acres, with full planning consent for demolition and replacement with five dwellings. The approved properties feature a contemporary design, where the architect has incorporated vaulted ceilings and utilised glass effectively to ensure natural light is present throughout each property. The original permission was for five single-storey dwellings; however, approval was subsequently given for a variation to two plots to create large two-storey units (full details below). Tenure Freehold. Location Located in the desirable village of Holme-on-Spalding-Moor, close to Market Weighton and Howden. The village has good amenities including a post office, a village hall, a number of shops, school and pubs, making it a popular choice for families. Accommodation See the legal pack for the approved plans.

The planning is for the erection of five dwellings, which are briefly as follows:

Plot A - 2 bed semi bungalow (930sqft)

Plot B - 2 bed semi bungalow (820sqft)

Plot C - 3/4 bed semi house (1323sqft)

Plot D - 5 bed semi house (1382sqft)

Plot E - 2 bed detached bungalow (876 sqft) Planning Permission Planning permission was originally granted on 28th April 2021 under application number 20/01450/PLF for 'Erection of 5 dwellings with associated access and parking following demolition of Public House' and subsequently revised on the 27th September 2021 application No: 21/02918/VAR for 'Variation of Condition 11 (approved plans (plot C & D only)) of planning permission 20/01450/PLF (Erection of 5 dwellings with associated access and parking following demolition of Public House).' The permission was secured in March 2024 by approval of Application No. 24/30096/CONDET 'Submission of details required by Condition 2 (Archaeological Investigation Scheme) of planning permission 21/02918/VAR' Services Interested parties should make their own enquiries regarding the availablility of services to the site and appropriate costs for conection thereto. Mains water, electricity and drainage are all believed to be available in the village. Viewings Strictly by appointment with the auctioneers on 0845 400 9900. Method of Sale The property will be offered for sale by online auction with bidding commencing at 1.00 pm on Monday 29th September 2025, and closing on Wednesday 1st October 2025, at 1.00 pm. For further legal information relating to this lot, please go to auctionhouse.co.uk/hullandeastyorkshire. Conditions of Sale The property will be sold subject to conditions of sale, copies of which will be available for inspection at the auctioneer’s offices, with the solicitors and online at auctionhouse.co.uk/hullandeastyorkshire prior to the date of the auction. Guide Price Guides are provided as an indication of each sellers minimum expectation. They are not necessarily figures which a property will sell for and may change at any time prior to the auction. Each property will be offered subject to a Reserve (a figure below which the Auctioneer cannot sell the property during the auction), which we expect will be set within the Guide Range or no more than 10% above a single figure Guide. Agents Note It has been brought to our attention that the property has been subject to fire damage throughout the ex-public house. If you have any questions regarding this, please contact the Auctioneer. Energy Efficiency Rating (EPC) Current Rating E Services Interested parties are invited to make their own enquiries to the relevant authorities as to the availability of the services. Local Authority East Riding of Yorkshire Council Solicitors BBS Law, 80 Coleman Street, London, EC2R 5BJ, Ref: Avi Barr, Tel: 020 4505 8081 Important Notice to Prospective Buyers: We draw your attention to the Special Conditions of Sale within the Legal Pack, referring to other charges in addition to the purchase price which may become payable. Such costs may include Search Fees, reimbursement of Sellers costs and Legal Fees, and Transfer Fees amongst others. Additional Fees Buyer's Premium - The purchaser will be required to pay a buyer’s premium of £720 (£600 + VAT) in addition to the purchase price of the property. Administration Charge - The purchaser will be required to pay an administration charge of 0.3% (inc. VAT) of the purchase price, subject to a minimum of £900 (£750 plus VAT) in addition to the purchase price of the property. Disbursements - Please see the legal pack for any disbursements listed that may become payable by the purchaser on completion. Please see the legal pack for any disbursements listed that may become payable by the purchaser on completion.

Location
Property for Auction in Hull & East Yorkshire - The Cross Keys, Moor End, Holme-on-spalding-Moor, North Yorkshire
More Information
Freehold
Moor End
Commercial
Planing Authority
East Riding of Yorkshire LPA
Sold Price History
03 Dec 2025Available Lot Auction House Hull & East Yorkshire£250,000

Interested in this lot?

GO TO THIS LOT

More Listings from this Auctioneer

Other listings nearby