Back to properties

The Sandy Lane Hotel Residential Care Home, 33 Sands Lane, Bridlington, East Yorkshire, YO15 2JG - Online Auctions

The Sandy Lane Hotel Residential Care Home, 33 Sands Lane, Bridlington, East Yorkshire, YO15 2JG

£735,000
Commercial
About this Property
2025-10-27
735000
Traditional
Commercial
Description

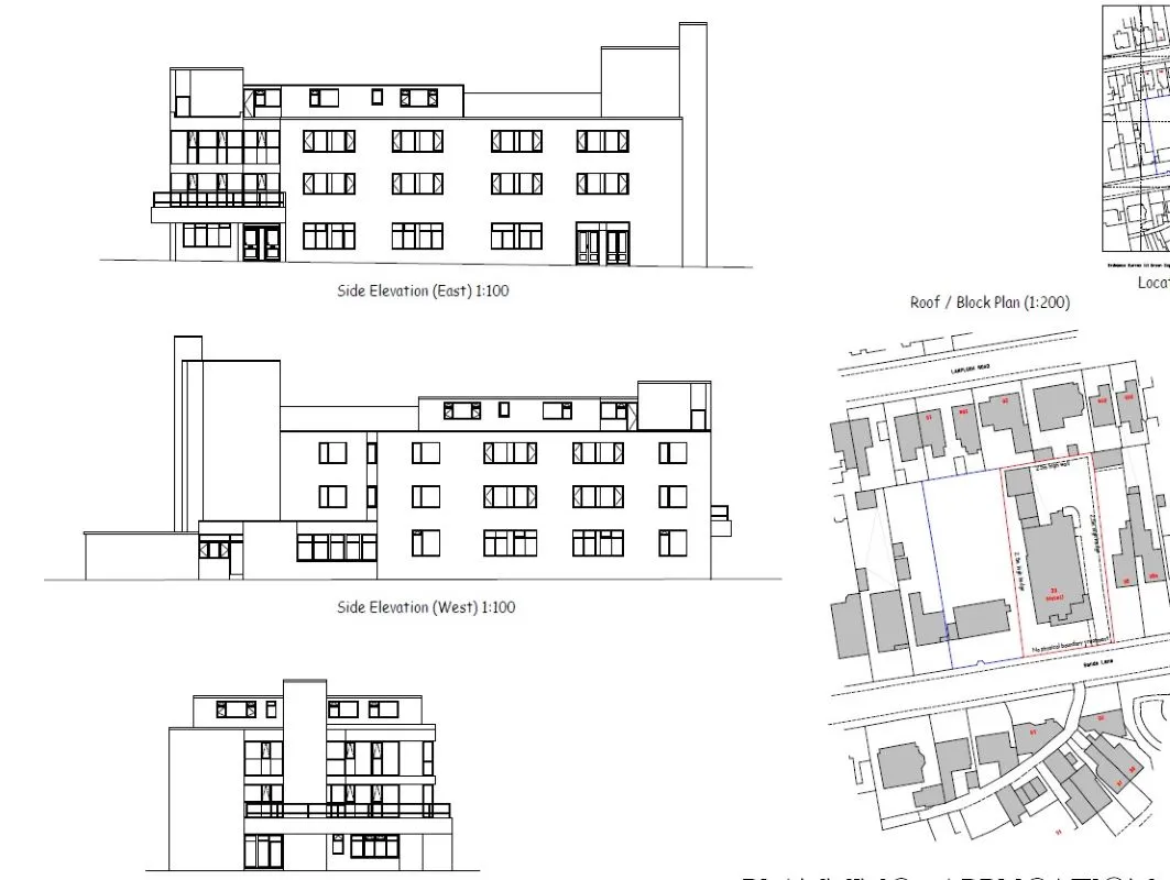
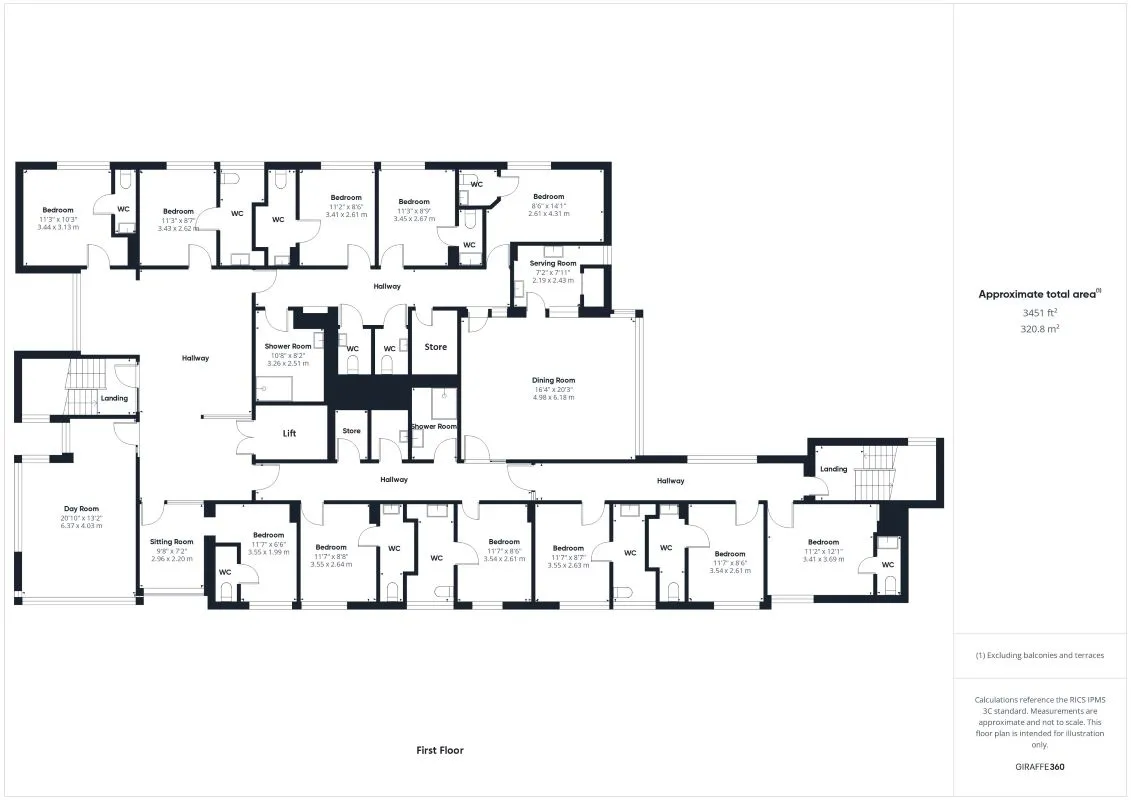
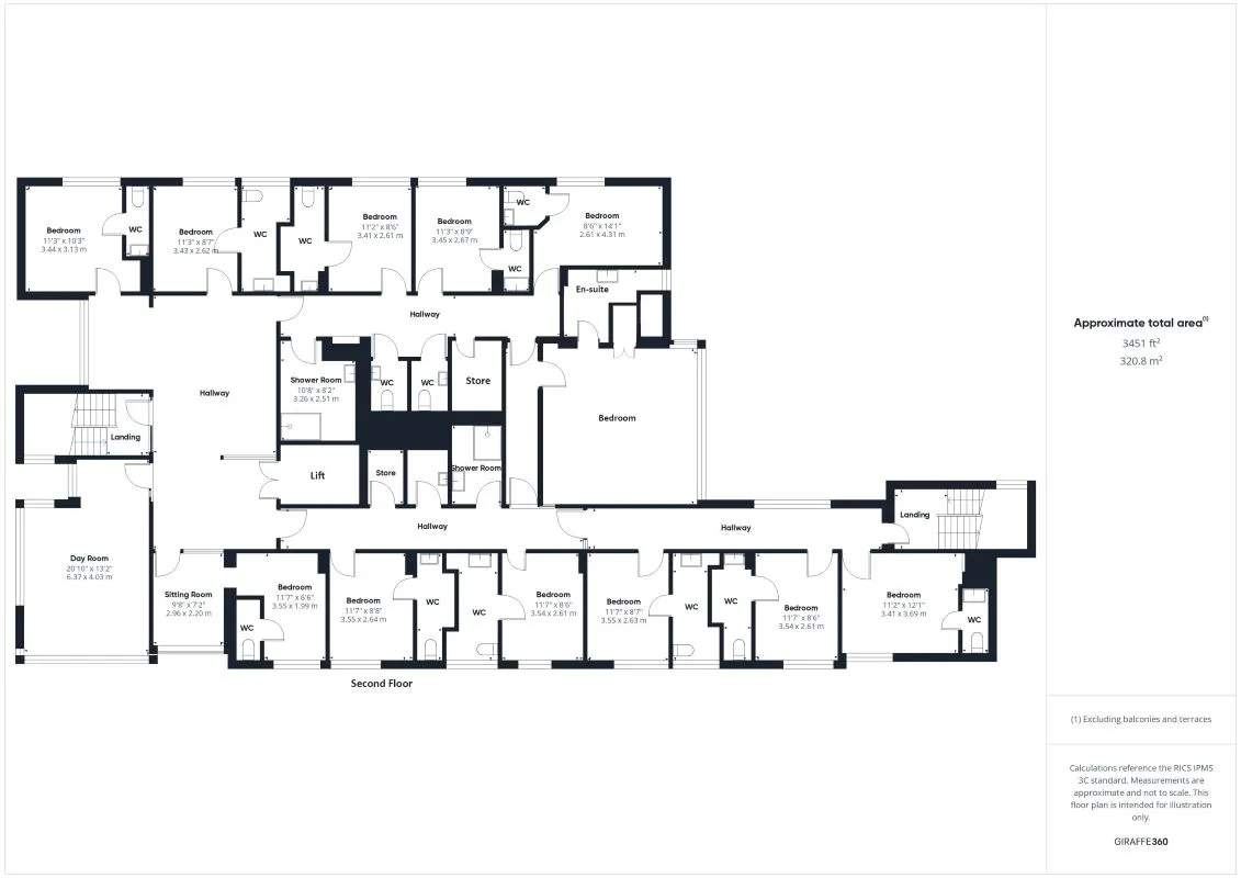
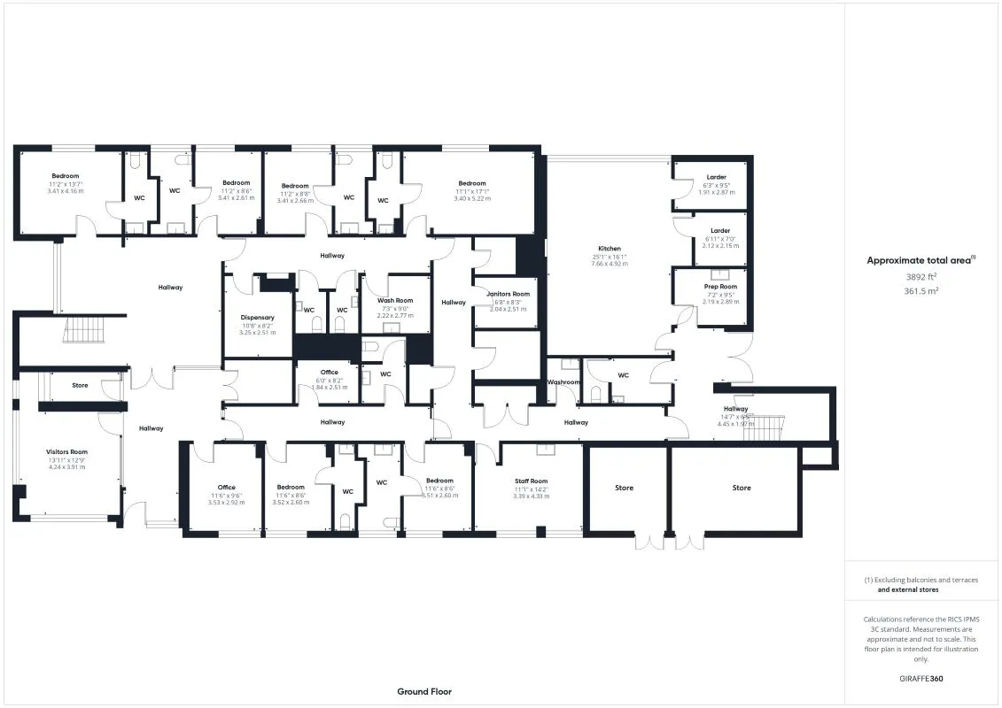
This substantial purpose-built former Retirement Home stands in one of Bridlington's most sought-after locations, enjoying sea views from many windows. Built in the 1960s, the four-storey building provides over 12,000 sq ft of accommodation, including six large communal lounges, two spacious dining rooms, a commercial kitchen, 29 single bedrooms with en-suite WC's, two large top-floor self-contained apartments, several offices, storage rooms and sluices, numerous communal bathrooms and WCs. The property occupies a site of over half an acre and includes ample off-street parking and three double garages. A large area of land that was previously the garden of the adjacent bungalow, is also included in the sale, which enhances the appeal of the property and presents additional opportunities for further redevelopment. The existing building also offers an opportunity to investors and developers to transform the property into luxury apartments; reinstatement as a care home; or transformation into a boutique hotel, (subject to necessary planning consent). Before deciding to sell, the vendors had plans drawn up for the alteration and extension of the upper floor accommodation to create two, two-bedroom Penthouse apartments. See floor plans for layout and location. Freehold with vacant possession upon completion. Solicitors Details: Andrew Jackson Solicitors, Foss Islands House, York, North Yorkshire, YO31 7UJ FTAO Kirsty Barsby 01904 563 134 The property will be offered for sale by online auction with bidding commencing at 12 noon on Monday 27th October 2025 and closing on Tuesday 28th October 2025 at 1.00pm. For further legal information relating to this lot please log on to auctionhouse.co.uk/hullandeastyorkshire. The property will be sold subject to conditions of sale, copies of which will be available for inspection at the auctioneer’s offices, with the solicitors and online at auctionhouse.co.uk/hullandeastyorkshire prior to the date of the auction. H The purchaser will be required to pay a buyer’s premium of £1,200 (£1,000 + VAT) in addition to the purchase price of the property. The purchaser will be required to pay an administration charge of 0.3% subject to a minimum of £1,200 (£1,000 plus VAT) in addition to the purchase price of the property. Please see the legal pack for any disbursements listed that may become payable by the purchaser on completion.

Location
The Sandy Lane Hotel Residential Care Home, 33 Sands Lane, Bridlington, East Yorkshire, YO15 2JG - Online Auctions
More Information
Freehold
Sands Lane
Commercial
Planing Authority
East Riding of Yorkshire LPA
Sold Price History
28 Nov 2003Sold£146,540
26 Jun 2023Sold£226,771

Interested in this lot?

GO TO THIS LOT

More Listings from this Auctioneer

Other listings nearby