Back to properties

Station Avenue, Bridlington, East Yorkshire, YO16 4LZ - Online Auctions

12 Station Avenue, Bridlington, East Yorkshire, YO16 4LZ

£135,000
Residential
About this Property
2025-11-03
135000
Traditional
Residential
Description

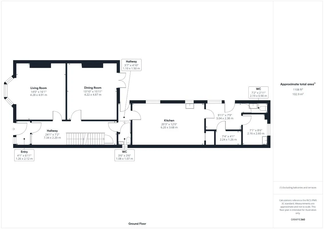
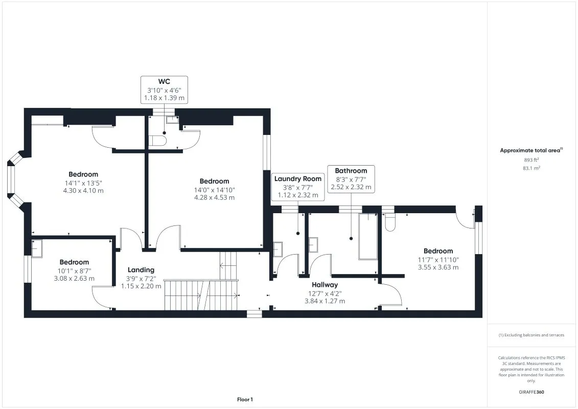
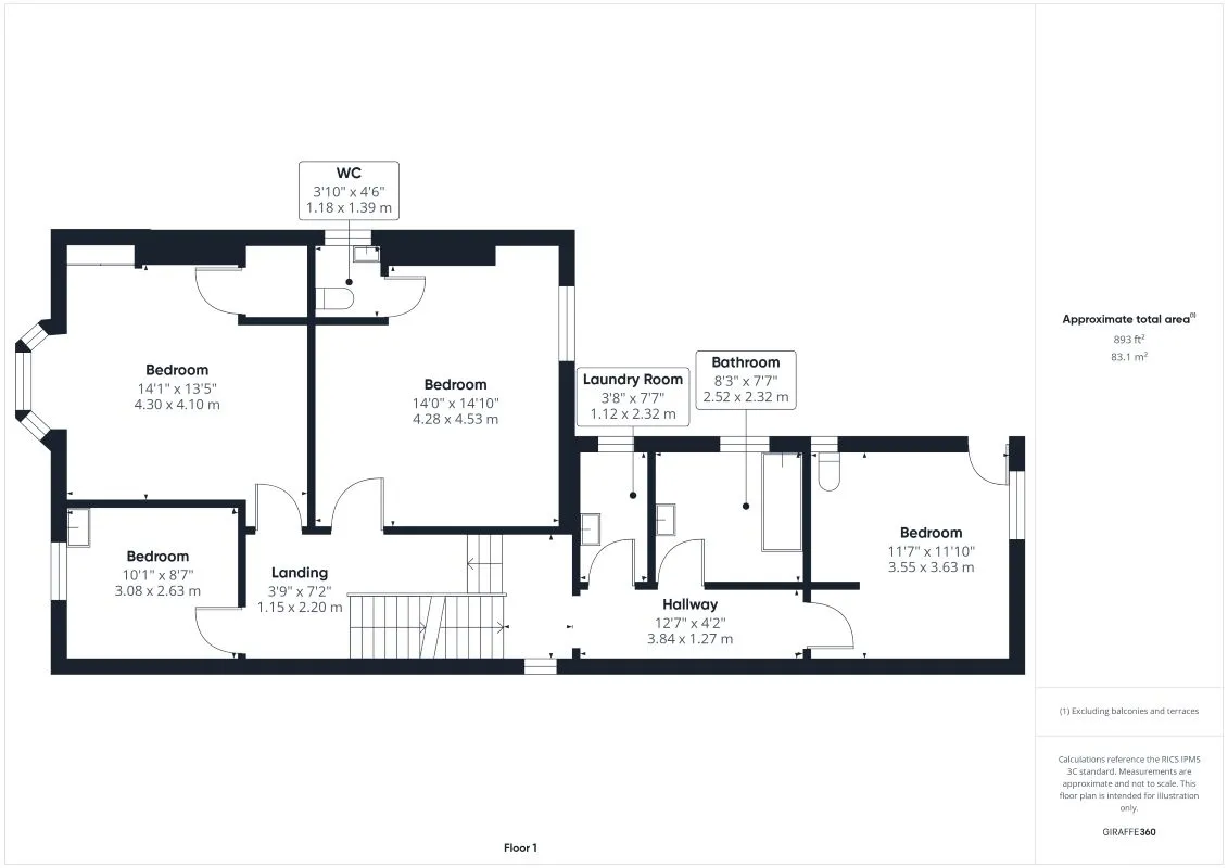
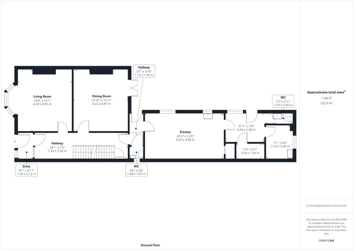
This six-bedroom detached house having previously been a residential home, is in need of modernisation and refurbishment throughout. The property offers potential to investors and property renovators alike to create a large family home or convert into flats (subject to necessary planning consents). The accommodation comprises two reception rooms, kitchen, utility rooms, three WCs, two bathrooms and six bedrooms. The property benefits from double glazing and gas central heating. Ground Floor: Entrance Hall, Living Room, Downstairs WCs, Kitchen, Utility Rooms. First Floor: Landing leading to four bedrooms (one with ensuite), Laundry Room, Bathroom. Second Floor: Landing leading to two further bedrooms and shower room. Large rear garden laid mainly to lawn with area of decking. Freehold. Method of Sale The property will be offered for sale by online auction with bidding commencing at 1pm on Monday 3rd November 2025 and closing on Tuesday 4th November 2025 at 1 pm. For further legal information relating to this lot and to register to bid, please go to auctionhouse.co.uk/hullandeastyorkshire. Conditions of Sale The property will be sold subject to conditions of sale, copies of which will be available for inspection at the auctioneer’s offices, with the solicitors and on-line at auctionhouse.co.uk/hullandeastyorkshire prior to the date of the auction. Guide Price Guides are provided as an indication of each sellers minimum expectation. They are not necessarily figures which a property will sell for and may change at any time prior to the auction. Each property will be offered subject to a Reserve (a figure below which the Auctioneer cannot sell the property during the auction) which we expect will be set within the Guide Range or no more than 10% above a single figure Guide. E Residential for Improvement The purchaser will be required to pay a buyer’s premium of £1500 (£1,250 + VAT) in addition to the purchase price of the property. The purchaser will be required to pay an administration charge of £1,200 (£1,000 plus VAT) in addition to the purchase price of the property. Please see the legal pack for any disbursements listed that may become payable by the purchaser on completion.

Location
Station Avenue, Bridlington, East Yorkshire, YO16 4LZ - Online Auctions
More Information
Freehold
Station Avenue
House
Planing Authority
East Riding of Yorkshire LPA
Sold Price History
25 Aug 2025Withdrawn Lot Auction House Hull & East Yorkshire£150,000

Interested in this lot?

GO TO THIS LOT

More Listings from this Auctioneer

Other listings nearby