Back to properties

41a, Woodland Rise, LONDON, London, N10 3UN

41a, Woodland Rise, LONDON, London, N10 3UN

£500,000
Residential
About this Property
2025-11-18
500000
Traditional
Residential
Description

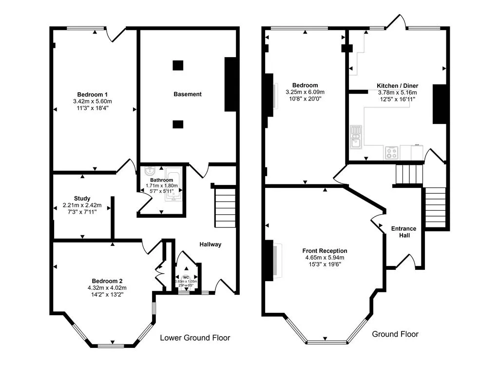
Leasehold two floor self-contained maisonette requiring modernisation 157 sqm / 1,693 sq ft Development potential STPP Two separate entrances Full vacant possession Location: The property is situated on Woodland Rise accessed via Cranley Gardens or Muswell Hill Road. Public transport links include Highgate London Underground Station together with a network of local bus services serving the surrounding vicinity. Road links include the A1 and A406 North Circular Road. Shopping amenities can be found locally within Muswell Hill with an extensive range of shops, bars and restaurants being found in Highgate Village and Muswell Hill Broadway. Recreational pursuits can be found locally at the open spaces of Highgate Wood, Queen’s Wood, and Alexandra Park and Hampstead Heath to the South. Description: This property boasts a substantial footprint of 157 sqm (1,693 sq ft.) providing generous living space throughout. The property also benefits from access via two separate entrances and good size garden to the rear. Accommodation: Ground floor: Entrance hall, one bedroom, kitchen/dining room Lower ground floor: Two bedrooms, study, bathroom, separate WC, basement Outside: Front and rear garden EPC rating: TBA Council Tax Band: F Lease: Held on a lease for a term of 99 years from 29th September 1963 (Thus having approximately 37 years remaining). Potential: The property benefits from two separate entrances on each floor and as such, may be suitable for conversion into two separate dwellings subject to planning permission and consents. Prospective purchasers must rely on their own enquires in this respect. To view: Strictly by arrangement with the auctioneer.

Location
41a, Woodland Rise, LONDON, London, N10 3UN
More Information
Leasehold
Woodland Rise
Leasehold two floor self-contained maisonette requiring modernisation
Planing Authority
Haringey LPA

Interested in this lot?

GO TO THIS LOT

More Listings from this Auctioneer

Other listings nearby