Back to properties

10b, Melody Road, LONDON, SW18 2QF

10b, Melody Road, LONDON, SW18 2QF

£349,000
Residential
About this Property
2025-11-18
349000
Traditional
Residential
Description

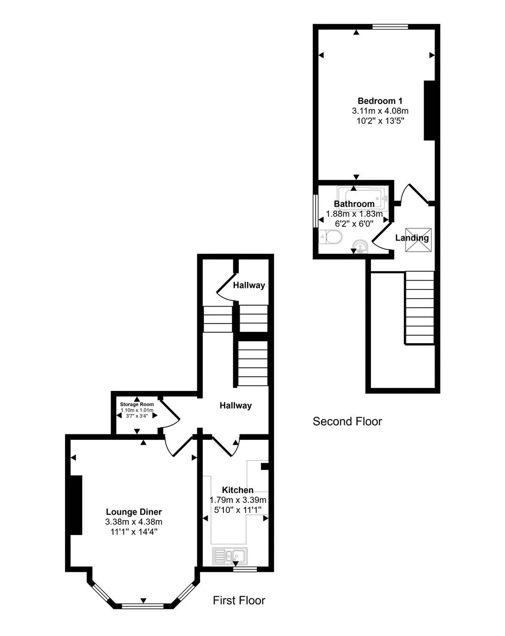
Leasehold split level maisonette Full vacant possession 3D Tour: Location: Situated on Melody road also providing links to the A205 South Circular. Further transport links include local bus routes, Wandsworth Town, Earlsfield or Clapham junction rail stations. Wandsworth town centre, Earlsfield, Putney or Clapham provide a wide range of shops, cafes, bars or restaurants and recreational pursuits can be found at King Georges or Spencer Parks. Accommodation (approx 57sqm/611sqft): First floor: Reception room, kitchen Second floor: Bedroom, bathroom/WC EPC Rating: D Council Tax Band: C Lease: To be sold on a new lease for a term of 125 years at a peppercorn ground rent. To view: Strictly by arrangement with the auctioneer.

Location
10b, Melody Road, LONDON, SW18 2QF
More Information
Leasehold
Melody Road
Leasehold split level maisonette
Planing Authority
Wandsworth LPA
Sold Price History
09 Sep 2025Withdrawn Lot Barnard Marcus Auctions£360,000

Interested in this lot?

GO TO THIS LOT

More Listings from this Auctioneer

Other listings nearby