56 - 64, Willow Lane, LANCASTER, Lancashire, LA1 5QF

56 - 64, Willow Lane, LANCASTER, Lancashire, LA1 5QF

£350,000
Mixed Use
Unsold
About this Property
18 November 2025
Unsold
£350,000
Traditional
Mixed Use
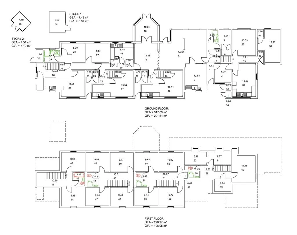
Description

The property is a freehold terrace of 5 interlinked properties requiring refurbishment, situated on a site area of approximately 0.64 acres. It has a total accommodation of approximately 549 m² (5,910 sq ft) across ground and first floor levels, including approximately 29 rooms, ancillary accommodation, storage, and a conservatory. The property was previously utilized as an adult residential home. It has gardens and parking and is located near local bus routes and Lancaster rail station. The EPC rating is C, and the Council Tax Band is E.

Location
Map location for 56 - 64, Willow Lane, LANCASTER, Lancashire, LA1 5QF
More Information
Freehold
Willow Lane
Planning Authority
Lancaster LPA
Property History
15 Apr 2025Unsold Lot Barnard Marcus Auctions£550,000
20 May 2025Unsold Lot Barnard Marcus Auctions£550,000
24 Jun 2025Unsold Lot Barnard Marcus Auctions£450,000
09 Dec 2025Withdrawn Lot Pugh & Company Limited£350,000
09 Dec 2025Withdrawn Lot Mark Jenkinson£350,000
10 Dec 2025Auction Ended Lot Pugh & Company Limited£350,000
03 Feb 2026Unsold Lot Barnard Marcus Auctions£300,000
10 Mar 2026Available Lot Barnard Marcus Auctions£300,000

Interested in this lot?

GO TO THIS LOT

More Listings from this Auctioneer

Other listings nearby

DISCLAIMER

No Affiliation: PropertyAuctions.io is an independent service and is not affiliated with, endorsed by, or connected to any auction house, auctioneer, or property owner listed on this site.

Information Accuracy: All property information, including auction dates, descriptions, images, and pricing, is provided for informational purposes only and may contain errors or be outdated. We make no guarantee regarding accuracy or completeness.

Third-Party Content: Property images and descriptions are sourced from publicly available information. We do not claim ownership of content that may be copyrighted by auction houses or other parties.

Your Responsibility: You must verify all information directly with the relevant auction house before bidding or making any decisions. PropertyAuctions.io is not liable for any errors, omissions, or losses arising from use of this website.

Report Issues: If you spot an error or have copyright concerns, please report it here.

View Full Terms and Conditions