55 Boutport Street, Barnstaple, Devon, EX31 1SH

55 Boutport Street, Barnstaple, Devon, EX31 1SH

£120,000
Mixed Use
Available
About this Property
07 May 2026
07 May 2026
Available
£120,000
Traditional
Mixed Use
Description

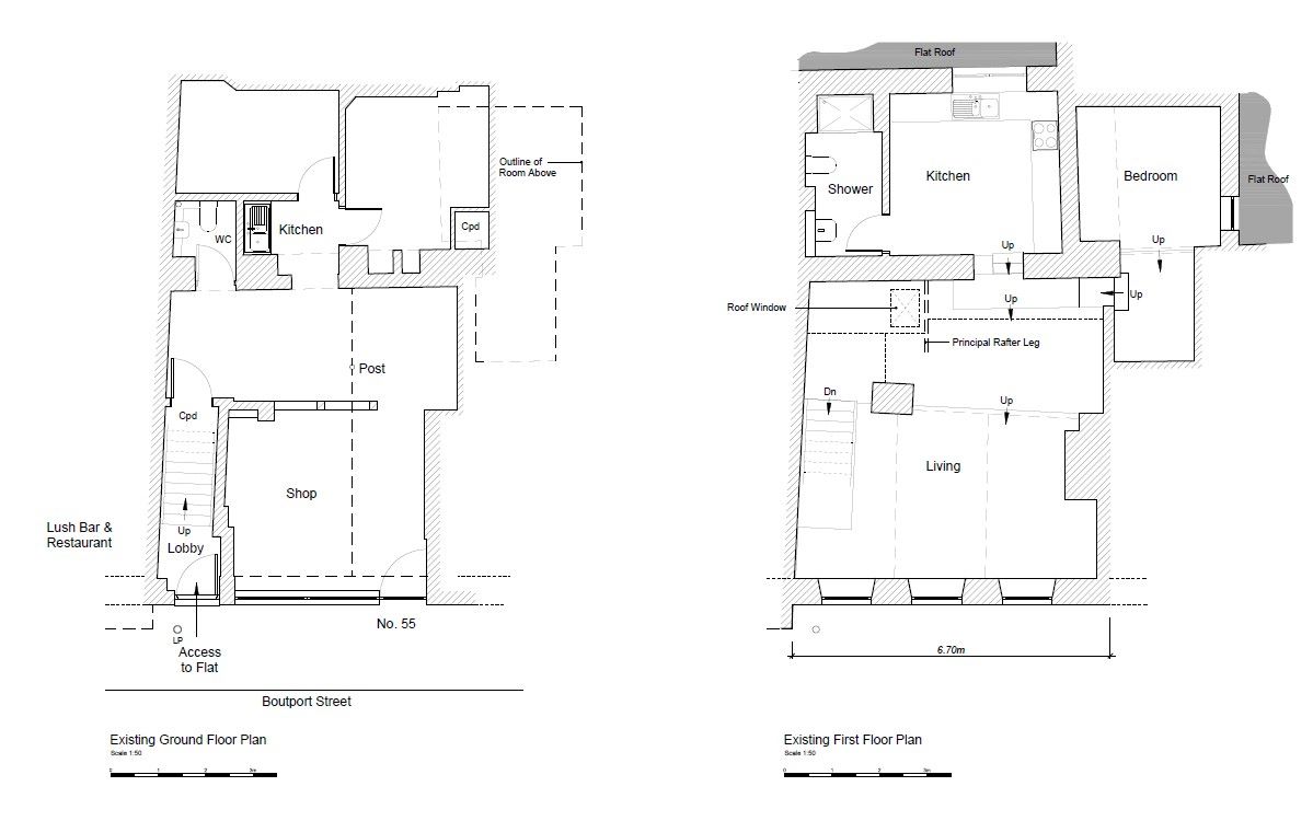
A freehold mixed-use property located in a town centre, comprising a ground floor commercial unit and a spacious one-bedroom flat above. The property is arranged over two floors, with potential for a third floor, situated in a vibrant commercial area opposite a cinema and surrounded by various national retailers, independent businesses, cafés, and leisure facilities. The commercial unit has previously operated as a takeaway and a hairdresser, with an anticipated rental income of £15,000 per annum. The flat was previously rented at £750 per calendar month. Recent updates include the separation of power supplies to the commercial unit and the flat onto individual meters, and the commercial space benefits from a newly installed three-phase electricity supply. Planning permission has been granted for the conversion of the loft to create additional living space, including the provision of dormer windows and internal layout changes at the first floor level. The potential combined rental value for both units is £24,000 per annum.

Location
Map location for 55 Boutport Street, Barnstaple, Devon, EX31 1SH
More Information
Freehold
Planning Authority
North Devon LPA
Address History

Interested in this lot?

GO TO THIS LOT

More Listings from this Auctioneer

DISCLAIMER

No Affiliation: PropertyAuctions.io is an independent service and is not affiliated with, endorsed by, or connected to any auction house, auctioneer, or property owner listed on this site.

Information Accuracy: All property information, including auction dates, descriptions, images, and pricing, is provided for informational purposes only and may contain errors or be outdated. We make no guarantee regarding accuracy or completeness.

Third-Party Content: Property images and descriptions are sourced from publicly available information. We do not claim ownership of content that may be copyrighted by auction houses or other parties.

Your Responsibility: You must verify all information directly with the relevant auction house before bidding or making any decisions. PropertyAuctions.io is not liable for any errors, omissions, or losses arising from use of this website.

Report Issues: If you spot an error or have copyright concerns, please report it here.

View Full Terms and Conditions