55 Boutport Street, Barnstaple, Devon, EX31 1SH

55 Boutport Street, Barnstaple, Devon, EX31 1SH

£120,000
Mixed Use
Withdrawn
About this Property
26 March 2026
26 March 2026
Withdrawn
£120,000
Traditional
Mixed Use
Description

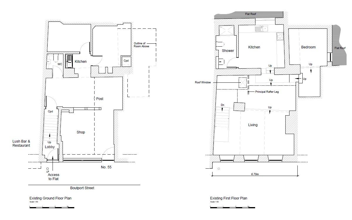
A Grade II listed mixed-use property located in a town centre, comprising a ground floor commercial unit and a spacious one-bedroom flat above, with planning permission to extend. The property is arranged over two floors and is situated in a vibrant commercial area, opposite a cinema and surrounded by various national retailers, independent businesses, cafés, and leisure establishments. The commercial unit has previously been used as a takeaway and a hairdresser, with an anticipated rental income of £15,000 per annum. The flat was previously rented at £750 per calendar month. The power supply to both the commercial unit and the flat has been separated onto individual meters, and the commercial unit benefits from a newly installed three-phase electricity supply. Planning approval has been granted for the conversion of the loft to create additional living space, along with the installation of dormer windows and internal layout changes. The property is held on a freehold tenure, with a potential combined rental value of £24,000 per annum.

Location
Map location for 55 Boutport Street, Barnstaple, Devon, EX31 1SH
More Information
Freehold
Planning Authority
North Devon LPA
Address History
30 Apr 2026Available Lot BTG Eddisons Property Auctions£120,000
30 Apr 2026Available Lot Mark Jenkinson£120,000
30 Apr 2026Available Lot Pugh & Company Limited£120,000
30 Apr 2026Available Lot Network Auctions£120,000

Interested in this lot?

GO TO THIS LOT

More Listings from this Auctioneer

Other listings nearby

DISCLAIMER

No Affiliation: PropertyAuctions.io is an independent service and is not affiliated with, endorsed by, or connected to any auction house, auctioneer, or property owner listed on this site.

Information Accuracy: All property information, including auction dates, descriptions, images, and pricing, is provided for informational purposes only and may contain errors or be outdated. We make no guarantee regarding accuracy or completeness.

Third-Party Content: Property images and descriptions are sourced from publicly available information. We do not claim ownership of content that may be copyrighted by auction houses or other parties.

Your Responsibility: You must verify all information directly with the relevant auction house before bidding or making any decisions. PropertyAuctions.io is not liable for any errors, omissions, or losses arising from use of this website.

Report Issues: If you spot an error or have copyright concerns, please report it here.

View Full Terms and Conditions