Burdon Hall, The Courtyard, The Stables, Bishopton Lane, DARLINGTON, County Durham, DL1 3JR

Burdon Hall, The Courtyard, The Stables, Bishopton Lane, DARLINGTON, County Durham, DL1 3JR

£370,000
Residential
Available
About this Property
14 April 2026
Available
£370,000
Traditional
Residential
Description

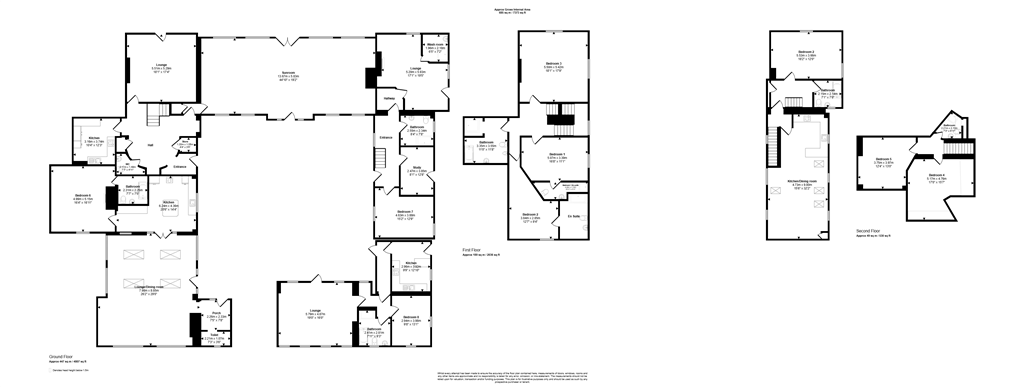
The property consists of four freehold houses offered as one lot. The View has one bedroom, a reception room, a kitchen, and a bathroom. The Courtyard features two bedrooms with ensuites, one additional bedroom, a reception room, a kitchen, and a bathroom. The Stables includes a principal bedroom with an ensuite, two further bedrooms, a reception room open plan to the kitchen, another reception room, and two bathrooms. The Coach House has one bedroom, a reception room, a kitchen, and a bathroom. All properties have an EPC rating of D. The Council Tax Bands are C for The View, B for The Courtyard, to be advised for The Stables, and D for The Coach House.

Location
Map location for Burdon Hall, The Courtyard, The Stables, Bishopton Lane, DARLINGTON, County Durham, DL1 3JR
More Information
Freehold
Bishopton Lane
Planning Authority
Darlington LPA
Address History
16 Dec 2025Sold Lot Barnard Marcus Auctions£440,000

Interested in this lot?

GO TO THIS LOT

More Listings from this Auctioneer

DISCLAIMER

No Affiliation: PropertyAuctions.io is an independent service and is not affiliated with, endorsed by, or connected to any auction house, auctioneer, or property owner listed on this site.

Information Accuracy: All property information, including auction dates, descriptions, images, and pricing, is provided for informational purposes only and may contain errors or be outdated. We make no guarantee regarding accuracy or completeness.

Third-Party Content: Property images and descriptions are sourced from publicly available information. We do not claim ownership of content that may be copyrighted by auction houses or other parties.

Your Responsibility: You must verify all information directly with the relevant auction house before bidding or making any decisions. PropertyAuctions.io is not liable for any errors, omissions, or losses arising from use of this website.

Report Issues: If you spot an error or have copyright concerns, please report it here.

View Full Terms and Conditions