Burdon Hall, The Courtyard, The Stables, Bishopton Lane, DARLINGTON, County Durham, DL1 3JR

Burdon Hall, The Courtyard, The Stables, Bishopton Lane, DARLINGTON, County Durham, DL1 3JR

£400,000
Residential
Sold
About this Property
16 December 2025
Sold
£400,000
Traditional
Residential
£440,000
Description

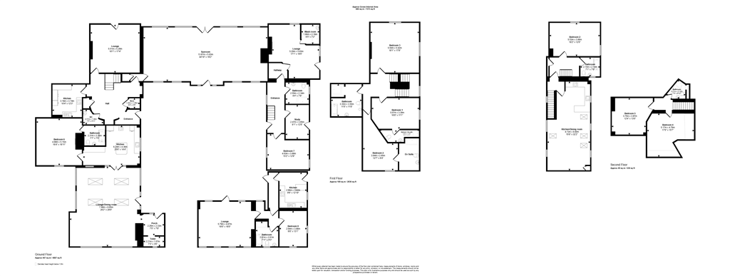
The property consists of four freehold houses offered as one lot. The accommodation includes one house with one bedroom, a reception room, kitchen, and bathroom; another with two bedrooms (both with ensuites), one further bedroom, reception room, kitchen, and bathroom; a third with a principal bedroom with ensuite, two further bedrooms, an open plan reception room and kitchen, and two bathrooms; and a fourth with one bedroom, reception room, kitchen, and bathroom. All houses have an EPC rating of D. The Council Tax Bands are B, C, and D for the respective houses, while the band for one house is to be advised. The property is located on Bishopton Lane, with local shopping amenities, public transport links, and recreational areas

Location
Map location for Burdon Hall, The Courtyard, The Stables, Bishopton Lane, DARLINGTON, County Durham, DL1 3JR
More Information
Freehold
Bishopton Lane
Planning Authority
Darlington LPA
Address History
14 Apr 2026Available Lot Barnard Marcus Auctions£370,000

Interested in this lot?

GO TO THIS LOT

More Listings from this Auctioneer

Other listings nearby

DISCLAIMER

No Affiliation: PropertyAuctions.io is an independent service and is not affiliated with, endorsed by, or connected to any auction house, auctioneer, or property owner listed on this site.

Information Accuracy: All property information, including auction dates, descriptions, images, and pricing, is provided for informational purposes only and may contain errors or be outdated. We make no guarantee regarding accuracy or completeness.

Third-Party Content: Property images and descriptions are sourced from publicly available information. We do not claim ownership of content that may be copyrighted by auction houses or other parties.

Your Responsibility: You must verify all information directly with the relevant auction house before bidding or making any decisions. PropertyAuctions.io is not liable for any errors, omissions, or losses arising from use of this website.

Report Issues: If you spot an error or have copyright concerns, please report it here.

View Full Terms and Conditions