127B Queens Road, Watford, Hertfordshire, WD17 2QL

127B Queens Road, Watford, Hertfordshire, WD17 2QL

£139,000
Residential
Unsold
About this Property
12 February 2026
12 February 2026
Unsold
£139,000
Traditional
Residential
Description

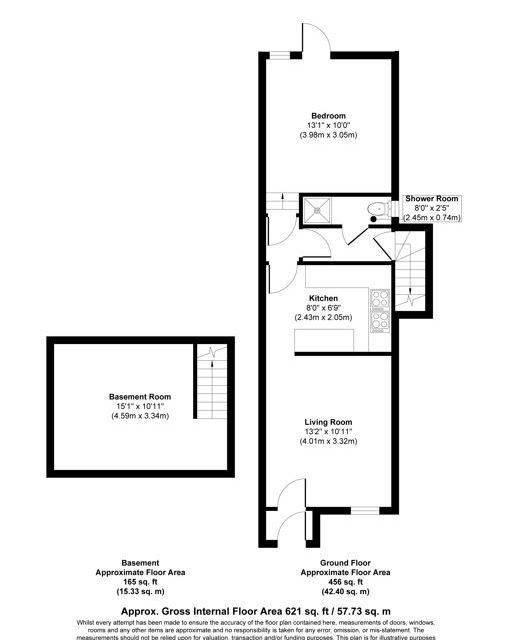
A 1-bedroom ground-floor flat with a basement area measuring 621 sq ft. The property is vacant and ready for occupation. It is located near the town center and Junction Station, approximately 0.2 miles away. The basement has been used as an occasional bedroom or study. The flat is leasehold with 99 years from March 13, 1987, and has 60 years remaining. Ground rent is £30 per annum, increasing to £120 per annum.

Location
Map location for 127B Queens Road, Watford, Hertfordshire, WD17 2QL
More Information
Leasehold
Queen's Road
Planning Authority
Watford LPA
Property History
03 Oct 2012Sold£90,000
26 Mar 2013Sold£113,000
23 Oct 2025Withdrawn Lot Network Auctions£139,000
11 Dec 2025Withdrawn Lot Network Auctions£139,000

Interested in this lot?

GO TO THIS LOT

More Listings from this Auctioneer

Other listings nearby

DISCLAIMER

No Affiliation: PropertyAuctions.io is an independent service and is not affiliated with, endorsed by, or connected to any auction house, auctioneer, or property owner listed on this site.

Information Accuracy: All property information, including auction dates, descriptions, images, and pricing, is provided for informational purposes only and may contain errors or be outdated. We make no guarantee regarding accuracy or completeness.

Third-Party Content: Property images and descriptions are sourced from publicly available information. We do not claim ownership of content that may be copyrighted by auction houses or other parties.

Your Responsibility: You must verify all information directly with the relevant auction house before bidding or making any decisions. PropertyAuctions.io is not liable for any errors, omissions, or losses arising from use of this website.

Report Issues: If you spot an error or have copyright concerns, please report it here.

View Full Terms and Conditions