47 Macers Court, Broxbourne, Hertfordshire, EN10 6EB

47 Macers Court, Broxbourne, Hertfordshire, EN10 6EB

£120,000
Residential
Sold
About this Property
26 March 2026
26 March 2026
Sold
£120,000
Traditional
Residential
£138,000
Description

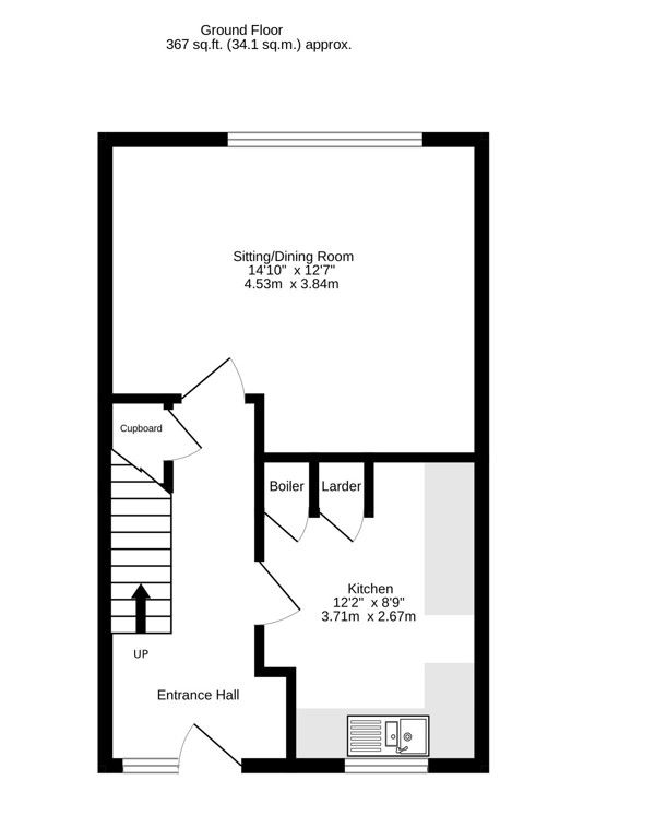
This leasehold duplex maisonette comprises 2 bedrooms and offers approximately 717 sq ft (66.6 sqm) of living space, including a balcony. The property is situated on the first and second floors of a 1980s development in Wormley, part of Broxbourne town, and is currently vacant. The interior requires complete modernisation, and the rooms are of a good size. The location is quiet, with no passing traffic, and features pleasant views over courtyard gardens from both the front and rear, including the master bedroom balcony. The block has recently undergone re-roofing. The lease has 84 years remaining, with a ground rent of £10 per annum.

Location
Map location for 47 Macers Court, Broxbourne, Hertfordshire, EN10 6EB
More Information
Leasehold
Planning Authority
Broxbourne LPA
Address History
01 Jul 2003Sold£100,000

Interested in this lot?

GO TO THIS LOT

More Listings from this Auctioneer

Other listings nearby

DISCLAIMER

No Affiliation: PropertyAuctions.io is an independent service and is not affiliated with, endorsed by, or connected to any auction house, auctioneer, or property owner listed on this site.

Information Accuracy: All property information, including auction dates, descriptions, images, and pricing, is provided for informational purposes only and may contain errors or be outdated. We make no guarantee regarding accuracy or completeness.

Third-Party Content: Property images and descriptions are sourced from publicly available information. We do not claim ownership of content that may be copyrighted by auction houses or other parties.

Your Responsibility: You must verify all information directly with the relevant auction house before bidding or making any decisions. PropertyAuctions.io is not liable for any errors, omissions, or losses arising from use of this website.

Report Issues: If you spot an error or have copyright concerns, please report it here.

View Full Terms and Conditions