Dartmouth Clinic, Mayors Avenue, Dartmouth, Devon, TQ6 9NF

Dartmouth Clinic, Mayors Avenue, Dartmouth, Devon, TQ6 9NF

£400,000
Commercial
Withdrawn
About this Property
12 February 2026
12 February 2026
Withdrawn
£400,000
Traditional
Commercial
Description

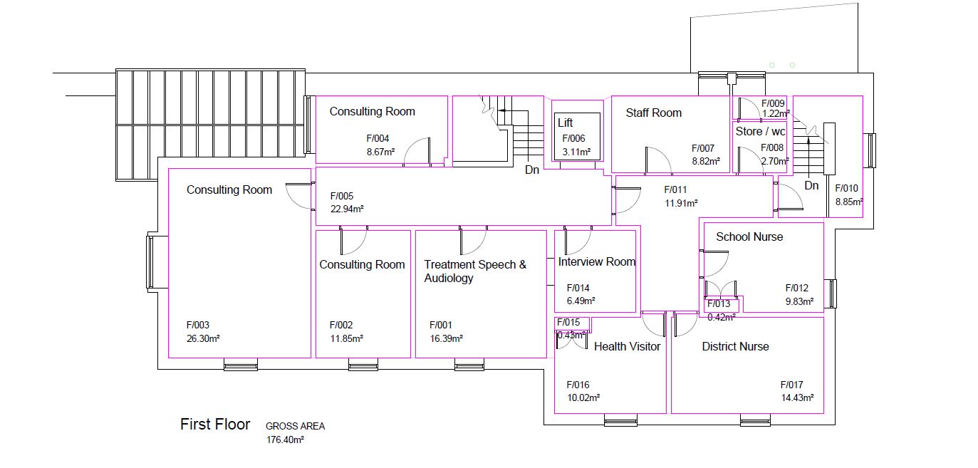
A 2-storey freehold building with a total area of 3,706 square feet (344 square meters) is situated on a corner site of 0.099 acres. The building includes consulting and treatment rooms, a waiting room, a reception area, and office accommodation. There is a car park located at the front of the building. The property has potential for various commercial uses and conversion to residential units, subject to necessary consents.

Location
Map location for Dartmouth Clinic, Mayors Avenue, Dartmouth, Devon, TQ6 9NF
More Information
Freehold
Mayor's Avenue
Planning Authority
South Hams LPA
Address History
18 Jul 2024Withdrawn Lot Network Auctions£500,000
12 Jun 2025Withdrawn Lot Network Auctions£500,000
17 Jul 2025Withdrawn Lot Network Auctions£500,000
18 Sep 2025Withdrawn Lot Network Auctions£425,000
23 Oct 2025Unsold Lot Network Auctions£425,000
11 Dec 2025Withdrawn Lot Network Auctions£425,000
26 Mar 2026Available Lot Network Auctions£425,000

Interested in this lot?

GO TO THIS LOT

More Listings from this Auctioneer

Other listings nearby

DISCLAIMER

No Affiliation: PropertyAuctions.io is an independent service and is not affiliated with, endorsed by, or connected to any auction house, auctioneer, or property owner listed on this site.

Information Accuracy: All property information, including auction dates, descriptions, images, and pricing, is provided for informational purposes only and may contain errors or be outdated. We make no guarantee regarding accuracy or completeness.

Third-Party Content: Property images and descriptions are sourced from publicly available information. We do not claim ownership of content that may be copyrighted by auction houses or other parties.

Your Responsibility: You must verify all information directly with the relevant auction house before bidding or making any decisions. PropertyAuctions.io is not liable for any errors, omissions, or losses arising from use of this website.

Report Issues: If you spot an error or have copyright concerns, please report it here.

View Full Terms and Conditions