Lord Cullen House, 127 Causewayend, Aberdeen AB25 3UB

Lord Cullen House, 127 Causewayend, Aberdeen AB25 3UB

£575,000
Commercial
Withdrawn
About this Property
29 January 2026
Withdrawn
£575,000
Traditional
Commercial
Description

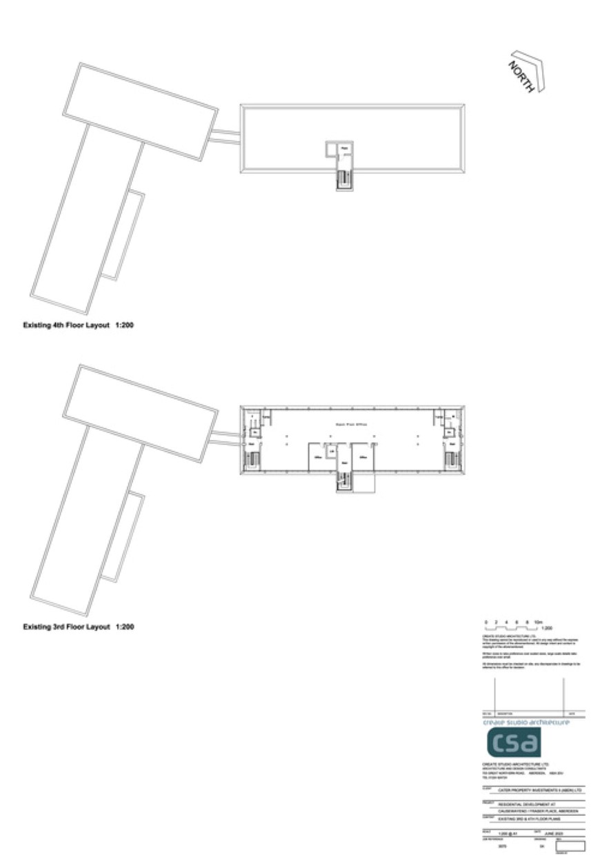
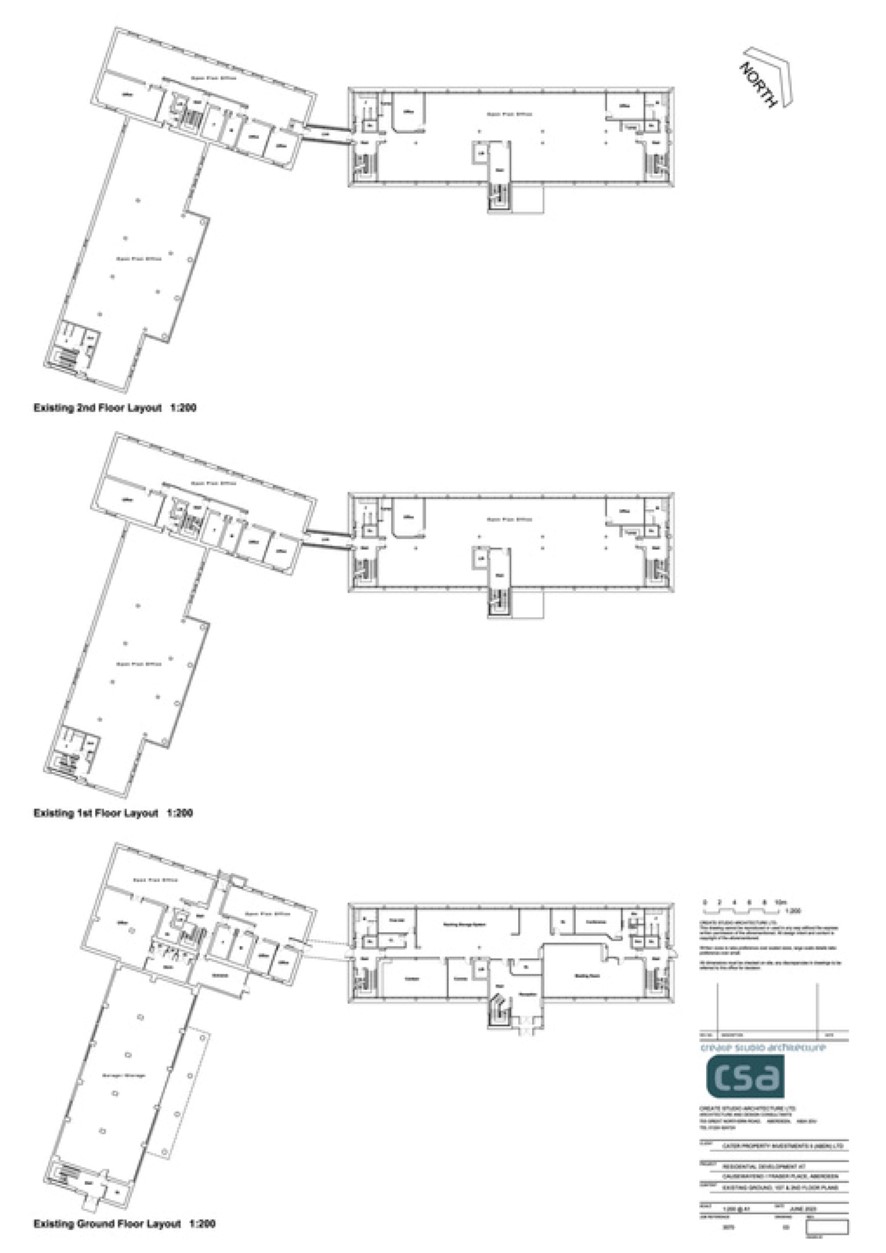
This property is a former office complex arranged over three to four floors, with a total area of approximately 4,069 square meters. It consists of two principal blocks connected by an enclosed walkway and has 58 on-site parking spaces, along with a ground-floor garage. The property is located approximately 1.5 miles from Aberdeen city center, near Aberdeen University, and is well-served by public transport and local amenities. It has been previously occupied by various organizations and is currently offered with vacant possession. The property has a current Energy Efficiency Rating of C and is elected for VAT. The tenure is freehold.

Location
Map location for Lord Cullen House, 127 Causewayend, Aberdeen AB25 3UB
More Information
Freehold
Planning Authority
Birmingham LPA
Property History
27 Nov 2025Auction Ended Lot Auction House Scotland£575,000
26 Feb 2026Withdrawn Lot Auction House Scotland£499,000
26 Mar 2026Available Lot Auction House Scotland£499,000

Interested in this lot?

GO TO THIS LOT

More Listings from this Auctioneer

Other listings nearby

DISCLAIMER

No Affiliation: PropertyAuctions.io is an independent service and is not affiliated with, endorsed by, or connected to any auction house, auctioneer, or property owner listed on this site.

Information Accuracy: All property information, including auction dates, descriptions, images, and pricing, is provided for informational purposes only and may contain errors or be outdated. We make no guarantee regarding accuracy or completeness.

Third-Party Content: Property images and descriptions are sourced from publicly available information. We do not claim ownership of content that may be copyrighted by auction houses or other parties.

Your Responsibility: You must verify all information directly with the relevant auction house before bidding or making any decisions. PropertyAuctions.io is not liable for any errors, omissions, or losses arising from use of this website.

Report Issues: If you spot an error or have copyright concerns, please report it here.

View Full Terms and Conditions