Back to properties

Freehold Building Plot - Consent for a Five Bedroomed Detached House.

The Goat Paddock (Plot 6), r/o Rokholt,, 123 New Penkridge Road, Cannock, Staffs, WS11 1HN

Residential
About this Property
2025-07-09
Traditional
Residential
Description

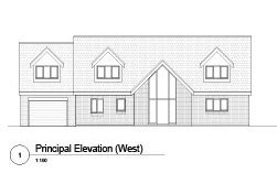
A opportunity to purchase a superbly located building plot lying within the grounds of a prestigious and iconic period manor house known as Rokholt and situated in a most sought after and desirable residential area, located half a mile to the west of Cannock Town Centre providing access to a wide range of retail amenities along with Cannock railway station which provides regular services to Birmingham. The plot is slightly sloping, roughly rectangular in shape which extends to an area of circa 0.192 acres (780 sq.m) and comprises of former garden land situated to the south of Rokholt and benefits from planning consent for erection of a five bedroom dwelling house with private driveway access leading directly from Rokholt Crescent. Cannock provides a good range of educational, retail and transport facilities and the M6, M6 Toll and M54 motorways are within easy travelling distance and the plot is a few minutes walk from the Shoal Hill common district of Cannock Chase, which is an area designated of being of outstanding natural beauty. Planning Planning Permission was granted by Cannock Chase District Council on 17th January 2025 under application number CH/24/093 for the erection of a 1½ storey detached dwelling house to comprise: Proposed Accommodation Ground Floor: Entrance hall, Lounge, Kitchen and combined Dining Room, Bedroom Five, Bathroom, Study, Utility Room. First Floor: Landing, Bedroom One with Ensuite Bathroom, Bedroom Two with Ensuite Bathroom, Bedroom Three with Ensuite Shower Room and Bedroom Four. Outside: Garage, gardens and driveway. Vehicular access is to be provided from Rokholt Crescent. Gross Internal Area: 256 sq.m (2755 sq.ft) or thereabouts (taken from architects drawings) Site Area: The plot extends to 0.192 acres (780 sq.m) or thereabouts with a maximum depth of 32.5m and width of 24m. Please note that all dimensions have been scaled from architects drawings and have not been physically measured by the auctioneers. Services: It is believed that all main services are available in Rockholt Crescent, but prospective purchasers should satisfy themselves in this respect by investigation or otherwise and also as to the cost and feasibility of connection. Important Note: The planning consent referred to (Ref: CH/24/093) relates to an overall consent for the development of the whole Rokholt site which includes a total of six separate dwellings of which the subject plot (Plot 6) is only one part of the scheme. All interested parties should inspect the full planning documents available on Cannock Chase District Council website and satisfy themselves in respect of all matters. Legal Documents: Available at www.cottons.co.uk Viewings: 1st July 2025: 11am – 12pm 3rd July 2025: 11am – 12pm 8th July 2025: 11am – 12pm

Location
More Information
Not Specified
New Penkridge Road
Planing Authority
Cannock Chase LPA
Sold Price History
21 May 2025Unsold Lot Cottons
22 Oct 2025Available Lot Cottons
22 Oct 2025Available Lot Cottons

Interested in this lot?

GO TO THIS LOT

More Listings from this Auctioneer