Back to properties

Freehold Building Plot - Consent for a Six Bedroom Detached House

Plot 1, Rokholt,, 123 New Penkridge Road, Cannock, Staffs, WS11 1HN

Residential
About this Property
2025-10-22
Traditional
Residential
Description

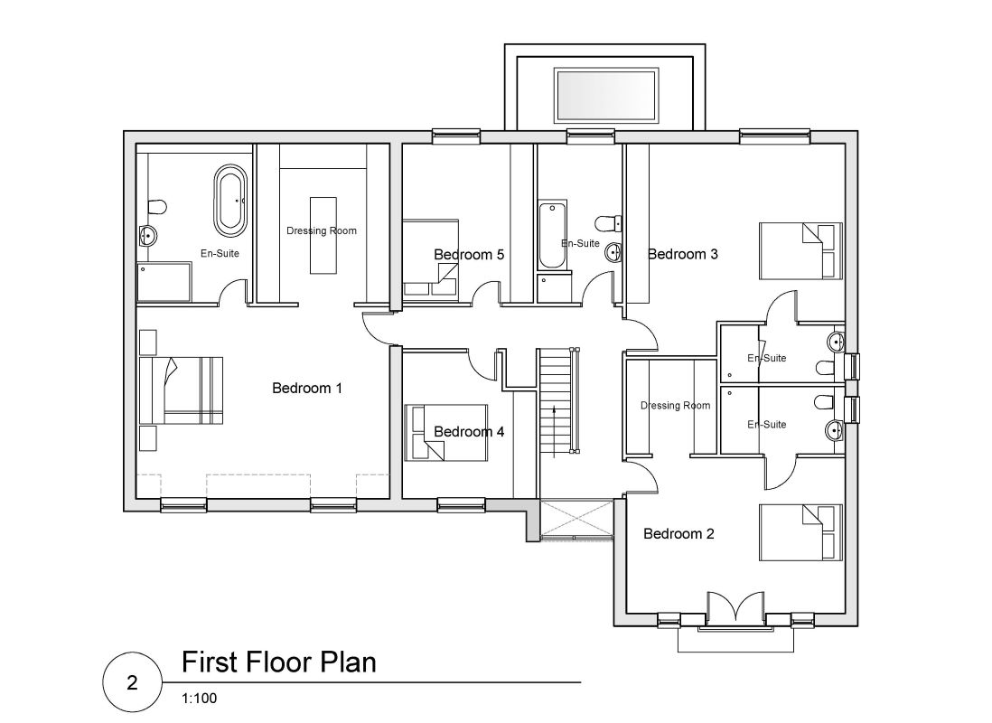
A opportunity to purchase a superbly located residential building plot lying within the grounds of a prestigious and iconic period manor house known as Rokholt and situated in a most sought after and desirable residential area, located half a mile to the west of Cannock Town Centre providing access to a wide range of retail amenities along with Cannock railway station which provides regular services to Birmingham. The plot is slightly sloping, roughly rectangular in shape which extends to an area of circa 0.446 acres (1,806 sq. m.) and comprises of former garden land situated to the west of Rokholt and benefits from planning consent for erection of a six bedroom executive dwelling house with private driveway access leading directly from New Penkridge Road. Cannock provides a good range of educational, retail and transport facilities and the M6, M6 Toll and M54 motorways are within easy travelling distance and the plot is a few minutes walk from the Shoal Hill common district of Cannock Chase, which is an area designated of being of outstanding natural beauty. Planning Planning Permission was granted by Cannock Chase District Council on 17th January 2025 under application number CH/24/093 for the erection of a 2½ storey detached dwelling house to comprise: Proposed Accommodation Ground Floor: Reception Hall, Study/Snug, Lounge, Rear Family Room comprising of Kitchen, Living and Dining Area, Utility Room, Cloakroom with wc, Double Integral Garage First Floor: Stairs and Landing, Bedroom One (Master) with Dressing Room and Ensuite Bath/Shower Room with wc, Bedroom Two with Dressing Room and Ensuite Shower Room, Bedroom Three with Ensuite Shower Room, Bedroom Four, Bedroom Five, Family Bath/Shower Room with wc. Second Floor: Stairs and Landling, Bedroom Six, Store, Shower Room and Office Outside: Front: Lawned Foregarden and Driveway leading off New Penkridge Road Rear: Patio, extensive landscaped garden with a large established pond. Total Site Area: 0.446 acres (1,806 sq m) Please note that all dimensions have been scaled from architects drawings and have not been physically measured by the auctioneers. Services: It is believed that all main services are available in New Penkridge Road, but prospective purchasers should satisfy themselves in this respect by investigation or otherwise and also as to the cost and feasibility of connection. Important Note: The planning consent referred to (Ref: CH/24/093) relates to an overall consent for the development of the whole Rokholt site which includes a total of six separate dwellings of which the subject plot (Plot 1) is only one part of the scheme. All interested parties should inspect the full planning documents available on Cannock Chase District Council website and satisfy themselves in respect of all matters. Legal Documents: Available at www.cottons.co.uk Completion Date: 56 days from Exchange of Contracts Auction Block Viewings: (Conducted by Boot & Son - 01543 505 454) Thursday 25 September 2025 at 11:00 am Thursday 2 October 2025 at 11:00 am Thursday 9 October 2025 at 11:00 am Thursday 16 October 2025 at 11:00 am Monday 20 October 2025 at 11:00 am

Location
More Information
Not Specified
New Penkridge Road
Planing Authority
Cannock Chase LPA
Sold Price History
21 May 2025Unsold Lot Cottons
09 Jul 2025Unsold Lot Cottons
22 Oct 2025Available Lot Cottons

Interested in this lot?

GO TO THIS LOT

More Listings from this Auctioneer