Back to properties

Freehold Vacant Detached Period Manor House with Consent to Subdivide into Two Dwellings

Plots 2 & 3, Rokholt, 123 New Penkridge Road, Cannock, Staffs, WS11 1HN

Residential
About this Property
2025-10-22
Traditional
Residential
Description

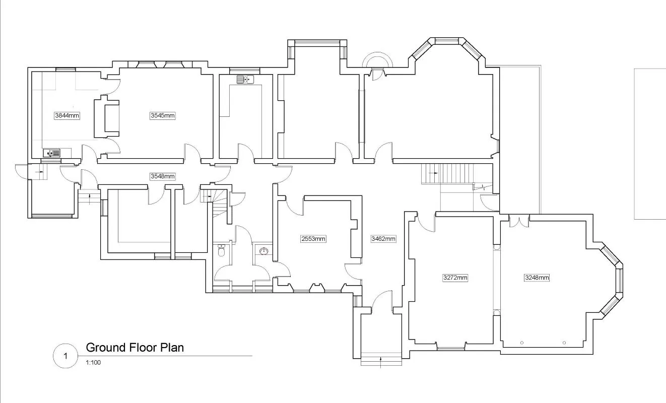
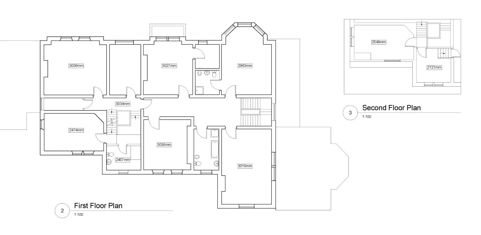
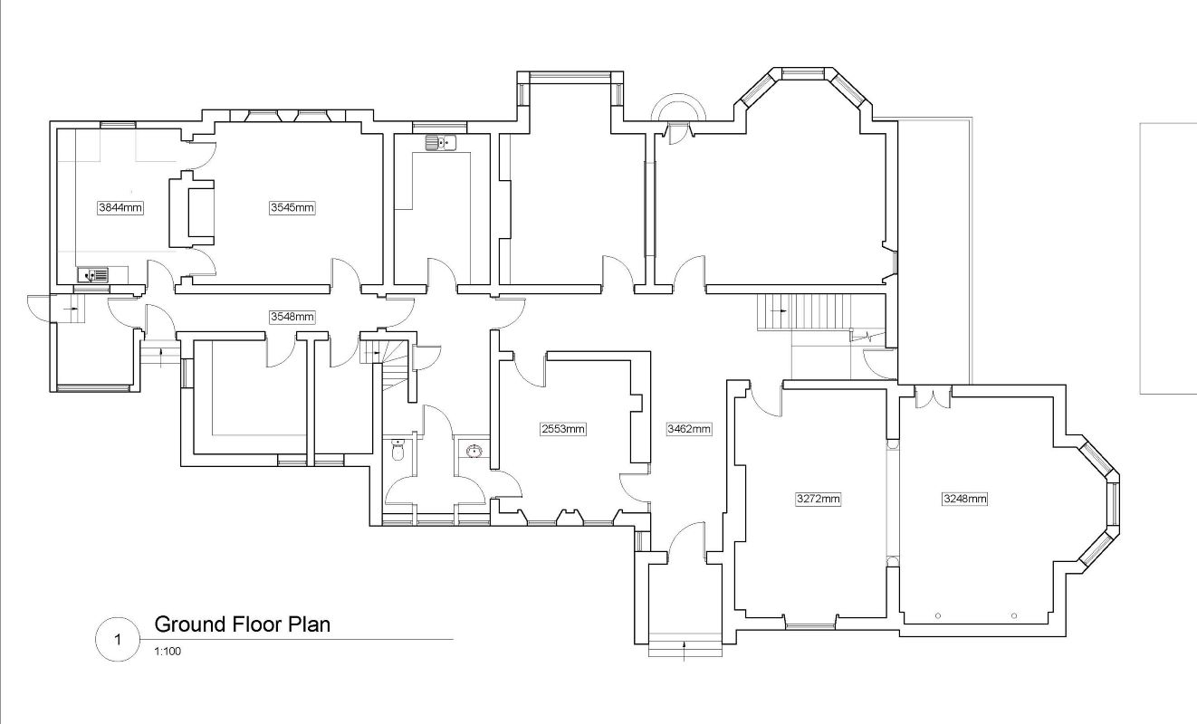
A unique opportunity to purchase a prestigious and iconic period manor house known as Rokholt, built in 1884 and owned by the same family since 1938. The property is situated in a most sought after and desirable residential area, located half a mile to the west of Cannock Town Centre providing access to a wide range of retail amenities along with Cannock railway station which provides regular services to Birmingham. This imposing property is of three storey brick construction with multi pitched tile clad roof and is set within extensive mature grounds extending to circa 1.43 acres and offers extensive accommodation including 8 bedrooms and a ballroom, steeped in history and containing an array of architectural and character features. Cannock provides a good range of educational, retail and transport facilities and the M6, M6 Toll and M54 motorways are within easy travelling distance and the plot is a few minutes walk from the Shoal Hill common district of Cannock Chase, which is an area designated of being of outstanding natural beauty. Planning The property requires some refurbishment and upgrading and has potential to be the most desirable single dwelling within Cannock, however it also benefits from planning permission granted by Cannock Chase District Council on 17th January 2025 under application number CH/24/093 for subdivision into two separate dwellings to comprise: Proposed Accommodation (Plots 2 & 3) Plot 2 Ground Floor: Grand Entrance, Large T Shaped Reception Hall, Cloakroom with wc, Study/Office, Lounge, Formal Dining Room, Family Room with Kitchen, Dining and Lounge areas , Conservatory. First Floor: Gallery Stairs and Large Landing, Bedroom One with Ensuite, Bedroom Two with Ensuite, Bedroom Three, Bedroom Four and Family Bathroom. Outside: Extensive gardens to front and rear with car parking. Plot 3 Ground Floor: Reception Hall, Sitting Room, Cloakroom with wc, Utility Room, Lounge, Dining Room, Kitchen. First Floor: Stairs and Large Landing, Bedroom One, Bedroom Two, Bedroom Three, Family Bathroom. Outside: Generous gardens to front and rear with car parking Services: It is believed that all main services are available but prospective purchasers should satisfy themselves in this respect by investigation or otherwise and also as to the cost and feasibility of connection. Important Note: The planning consent referred to (Ref: CH/24/093) relates to an overall consent for the development of the whole Rokholt site which includes a total of six separate dwellings of which the subject plot (Plot 6) is only one part of the scheme. All interested parties should inspect the full planning documents available on Cannock Chase District Council website and satisfy themselves in respect of all matters. Existing Accommodation Ground Floor: Grand Entrance, Large T Shaped Reception Hall, Ballroom: 10.21m x 7.34m, Orangery: 8.69m x 2.39m, Sitting Room: 7.4m x 4.87m opening to Library: 6.64m x 4.85m, Snug: 4.89m x 4.6m, Inner Hallway, Washroom with basin, Toilet with wc, Cellar with Hallway and Two Rooms: 7.0m x 5.21m, Kitchen One: 4.95m x 3.05m, Kitchen Two: 5.04 x 3.98m, Dining Room: 6.15m x 5.28m, Boot Room: 2.94m x 2.47m, Scullery: 3.71m x 3.65m, Back Stairs Hallway. First Floor: Gallery Stairs and Landing: 9.52mx 2.75m (max), Bedroom One: 7.36m x 4.89m, Bedroom Two: 6.72m x 4.90m with Ensuite Shower Room: 2.39m x 2.36m, Bedroom Three: 4.9m x 3.89m with Ensuite Shower Room: 2.27m x 2.36m, Bedroom Four: 4.94m x 4.24m, Family Bathroom: 4.0m x 2.44m, Inner Landing, Bedroom Five: 3.67m x 5.84m, Shower Room: 3.36m x 2.36m, Bedroom 5.0m x 3.05m, Bedroom Seven: 6.13m x 5.26m, Box Room: 3.7m x 1.21m. Second Floor: Stairs to Bedroom Eight: 5.88m x 3.39m, Former Bedroom with wc: 3.36m x 3.34, Stairs to Loft Room Outside: Front: Impressive gated access to a lawned fore garden with mature screening from New Penkridge Road having large gravelled parking area, brick built Garage and Workshop: 7.59m x 3.7m Side/Rear: Enclosed brick paved Courtyard, two brick stores and toilet, covered yard area with access to boiler room, paved patio and extensive lawned gardens with mature trees and bushes. Site Area: The plot extends to 1.43 acres (5,800 sq.m) or thereabouts Please note that all dimensions have been scaled from architects drawings and have not been physically measured by the auctioneers. Legal Documents: Available at www.cottons.co.uk Completion Date: 56 days from Exchange of Contracts Auction Block Viewings: (Conducted by Boot & Son - 01543 505 454) Thursday 25 September 2025 at 11:00 am Thursday 2 October 2025 at 11:00 am Thursday 9 October 2025 at 11:00 am Thursday 16 October 2025 at 11:00 am Monday 20 October 2025 at 11:00 am

Location
More Information
Not Specified
New Penkridge Road
Planing Authority
Cannock Chase LPA
Sold Price History
21 May 2025Unsold Lot Cottons
09 Jul 2025Unsold Lot Cottons
22 Oct 2025Available Lot Cottons

Interested in this lot?

GO TO THIS LOT

More Listings from this Auctioneer