42 Plymouth Road, Penarth, CF643DH

42 Plymouth Road, Penarth, CF643DH

£550,000
Residential
Withdrawn
About this Property
28 April 2025
29 April 2025
Withdrawn
£550,000
Modern
Residential
Description

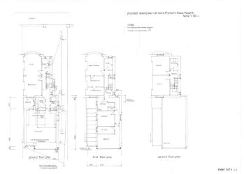
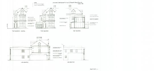
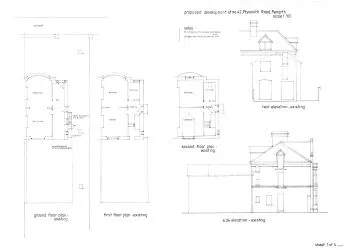
Substantial semi-detached period property on a generous plot. Planning has been applied for a rear two-storey extension to create a five-bedroom, four-bathroom home extending to approximately 3,500 sqft, including the basement. The property has undergone preparatory work, including the demolition of a former rear annexe and renewal of utility supplies. The layout includes a large entrance hall, a double through reception, and multiple rooms designed for a principal suite and additional bedrooms and bathrooms. There is a basement with full head height and a generous level rear garden requiring landscaping. The property features a front driveway with space for several cars and a front garden.

Location
Map location for 42 Plymouth Road, Penarth, CF643DH
More Information
Leasehold
Planning Authority
Vale of Glamorgan
Address History
02 Sep 2024Sold£490,000
09 Jun 2025Sold Lot R H Seel & Co Limited£610,000
09 Jul 2025Sold£610,000

Interested in this lot?

GO TO THIS LOT

More Listings from this Auctioneer

Other listings nearby

DISCLAIMER

No Affiliation: PropertyAuctions.io is an independent service and is not affiliated with, endorsed by, or connected to any auction house, auctioneer, or property owner listed on this site.

Information Accuracy: All property information, including auction dates, descriptions, images, and pricing, is provided for informational purposes only and may contain errors or be outdated. We make no guarantee regarding accuracy or completeness.

Third-Party Content: Property images and descriptions are sourced from publicly available information. We do not claim ownership of content that may be copyrighted by auction houses or other parties.

Your Responsibility: You must verify all information directly with the relevant auction house before bidding or making any decisions. PropertyAuctions.io is not liable for any errors, omissions, or losses arising from use of this website.

Report Issues: If you spot an error or have copyright concerns, please report it here.

View Full Terms and Conditions