Back to properties

High Spen, Rowlands Gill, Tyne And Wear, NE39 2BH - Online Auctions

1 Ethel Terrace High Spen, Rowlands Gill, Tyne And Wear, NE39 2BH

£140,000
Residential
About this Property
2025-10-27
140000
Traditional
Residential
Description

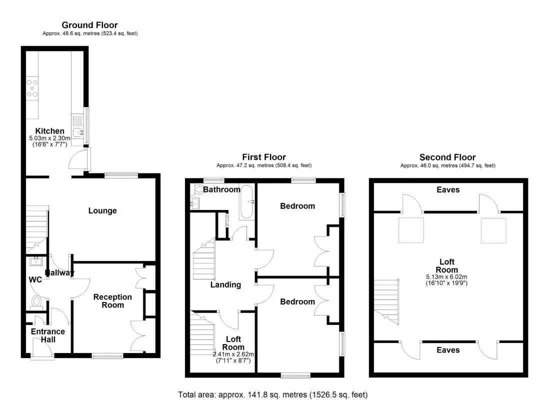
Spacious Modernised End-Terrace Home with Stylish Interiors & Loft Conversion Please call YourMove Rowlands Gill on O12O7544498 to arrange a viewing! An exciting opportunity to acquire a beautifully refurbished and deceptively spacious three-bedroom end-terrace property, ideally situated in the heart of High Spen. Finished to a high standard throughout, this charming home combines period character with contemporary design, making it an excellent choice for homeowners and investors alike. Key Features: -Fully modernised three-storey end-terrace home -Contemporary fitted kitchen with integrated appliances & feature radiator wall -Two generous reception rooms with modern décor and feature lighting -Stylish family bathroom with rainfall shower and sleek black fixtures -Downstairs WC for added convenience -Two well-proportioned first-floor bedrooms plus additional loft room -Large converted loft with excellent head height and eaves storage -Double-glazed windows & modern gas central heating -Private gated yard to the rear with space for bins/bikes or seating area -Move-in ready with neutral, fresh interiors Accommodation: The ground floor offers a welcoming entrance hall, WC, and two reception rooms, ideal for family living or home working. A stunning, recently installed kitchen features integrated appliances, ample storage, and a striking bespoke radiator feature wall. Upstairs, there are two spacious double bedrooms, a modern bathroom with elegant tiling and high-quality fixtures, and an additional versatile room perfect as an office or nursery. The second floor reveals a superbly finished loft room, offering great flexibility as a master suite, games room, or home office. Location: Positioned on the quiet cul-de-sac of Ethel Terrace, the property benefits from excellent access to local shops, schools, and transport links. High Spen offers a welcoming community feel and is just a short drive from Rowlands Gill, Chopwell, and major routes connecting to Newcastle, Gateshead, and Durham. Auctioneer’s Note: A turn-key ready property — ideal for first-time buyers, growing families, or buy-to-let investors. Early viewing is strongly advised.

Location
High Spen, Rowlands Gill, Tyne And Wear, NE39 2BH - Online Auctions
More Information
Freehold
Ethel Terrace
House
Planing Authority
Gateshead LPA
Sold Price History
15 Sep 2014Sold£93,000
18 Jan 2024Unsold Lot GOTO Properties£61,000
05 Jun 2024Sold£60,000
25 Jul 2024Sold£90,000

Interested in this lot?

GO TO THIS LOT

More Listings from this Auctioneer

Other listings nearby