Land at, Alexandra Mews, London, N10 2PG

Land at, Alexandra Mews, London, N10 2PG

£380,000
Land
Unsold
About this Property
21 May 2024
Unsold
£380,000
Traditional
Land
Description

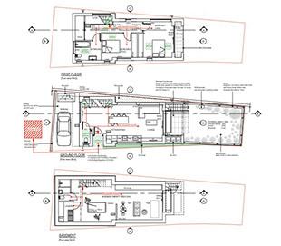
The property is a freehold development land located off Strode Close. It has planning permission granted for the construction of a three-floor detached house, which will include two bedrooms, a bathroom, an open-plan kitchen/living room, a utility room, and a shower room. The property will also feature off-street parking, gardens, and associated landscaping. Public transport options are available nearby, including local bus routes and access to New Southgate rail station and Arnos Grove and Bounds Green London underground stations.

Location
Map location for Land at, Alexandra Mews, London, N10 2PG
More Information
Freehold
Planning Authority
Haringey LPA
Address History
25 Jun 2024Withdrawn Lot Barnard Marcus Auctions£335,000

Interested in this lot?

GO TO THIS LOT

More Listings from this Auctioneer

Other listings nearby

DISCLAIMER

No Affiliation: PropertyAuctions.io is an independent service and is not affiliated with, endorsed by, or connected to any auction house, auctioneer, or property owner listed on this site.

Information Accuracy: All property information, including auction dates, descriptions, images, and pricing, is provided for informational purposes only and may contain errors or be outdated. We make no guarantee regarding accuracy or completeness.

Third-Party Content: Property images and descriptions are sourced from publicly available information. We do not claim ownership of content that may be copyrighted by auction houses or other parties.

Your Responsibility: You must verify all information directly with the relevant auction house before bidding or making any decisions. PropertyAuctions.io is not liable for any errors, omissions, or losses arising from use of this website.

Report Issues: If you spot an error or have copyright concerns, please report it here.

View Full Terms and Conditions