Land at, Alexandra Mews, London, N10 2PG

Land at, Alexandra Mews, London, N10 2PG

£335,000
Land
Withdrawn
About this Property
25 June 2024
Withdrawn
£335,000
Traditional
Land
Description

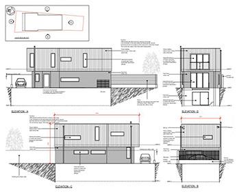
The property is a freehold development land located off Strode Close, granted planning permission for a detached house arranged over three floors. The proposed accommodation includes two bedrooms and a bathroom on the first floor, an open-plan kitchen/living room and a WC on the ground floor, and an open-plan reception room, utility room, and shower room/WC in the basement. The site also includes provisions for off-street parking, gardens, and landscaping.

Location
Map location for Land at, Alexandra Mews, London, N10 2PG
More Information
Freehold
Planning Authority
Haringey LPA
Address History
21 May 2024Unsold Lot Barnard Marcus Auctions£380,000

Interested in this lot?

GO TO THIS LOT

More Listings from this Auctioneer

Other listings nearby

DISCLAIMER

No Affiliation: PropertyAuctions.io is an independent service and is not affiliated with, endorsed by, or connected to any auction house, auctioneer, or property owner listed on this site.

Information Accuracy: All property information, including auction dates, descriptions, images, and pricing, is provided for informational purposes only and may contain errors or be outdated. We make no guarantee regarding accuracy or completeness.

Third-Party Content: Property images and descriptions are sourced from publicly available information. We do not claim ownership of content that may be copyrighted by auction houses or other parties.

Your Responsibility: You must verify all information directly with the relevant auction house before bidding or making any decisions. PropertyAuctions.io is not liable for any errors, omissions, or losses arising from use of this website.

Report Issues: If you spot an error or have copyright concerns, please report it here.

View Full Terms and Conditions