Back to properties

Baldu, Truro, Cornwall, TR3 6EG - Online Auctions

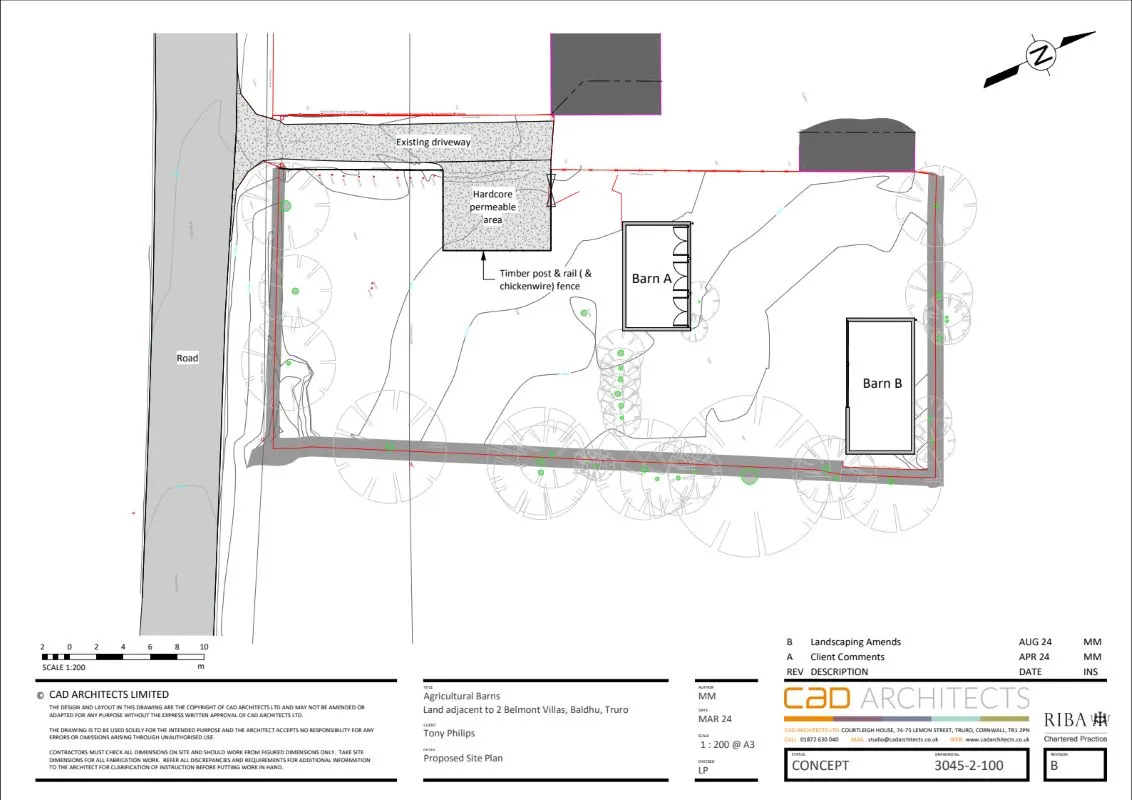
Belmont Barns Baldu, Truro, Cornwall, TR3 6EG

£75,000
Land
About this Property
2025-10-27
75000
Traditional
Land
Description

Guide Price £75,000 - £85,000+ (plus fees). For Sale via our National Online Auction, bidding opens 27/10/2025 at 13:00 and closes 24 hours later. Freehold Parcel of Land with Planning Permission. Legal Pack via our website. Parcel of Land with Planning Permission. A freehold parcel of land with planning permission, extending to approx. 1/4 of an acre, the land has direct frontage to the road and is in a rural location close to Truro. There is planning permission for two buildings for livestock purposes. AGENTS NOTE Planning permission was passed for two livestock buildings in 2024 under the planning application number PA24/04513. We have been advised foundations have been laid by the current owners, they would need to be checked to ensure they comply with the planning consent, together with the addition of services which include electricity, water and drainage. The seller has advised the title includes the driveway with the neighbouring property having a right of way to their property and there is potential for residential planning subject to the appropriate planning consents. FULL DETAILS Photographs, Dimensions, Floor Plans and Area Measurements (when available) are included within our full details online on our website. All published information is to aid identification of the property and is not necessarily to scale. VIEWINGS Viewings are available without appointment during all daylight hours, giving due consideration to neighbouring businesses, property and land. NOTICE TO BIDDER Please be aware that if your bid is successful on auction day the exchange of contracts will happen immediately after the auction.

Location
More Information
Freehold
Belmont Terrace
Land
Planing Authority
Cornwall LPA

Interested in this lot?

GO TO THIS LOT

More Listings from this Auctioneer

Other listings nearby