Back to properties

Land Adj. to Homestead, Harehedge Lane, Burton-On-Trent, Staffordshire DE13 0AS

Land Adj. to Homestead, Harehedge Lane, Burton-On-Trent, Staffordshire DE13 0AS

£80,000
Land
About this Property
2025-10-29
80000
Traditional
Land
Description

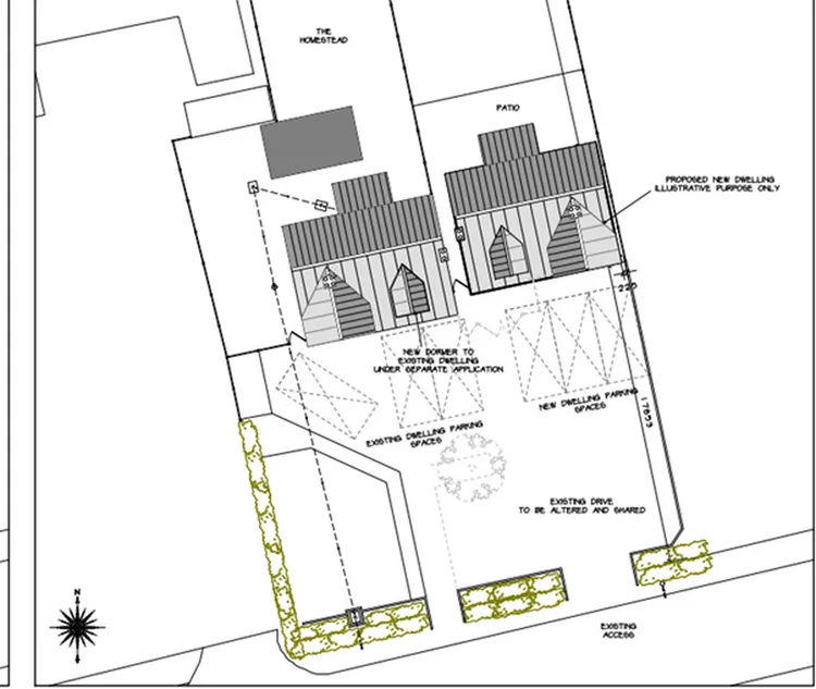
Land Property Description: A building plot with outline planning for a detached property. A substantial plot which will house a lovely detached family home with plenty of parking to the front and a large garden to the rear. The site sits adjacent to The Homestead, a detached house which will be offered for sale in the same auction. Planning permission Ref P/2025/00133. Full details and plans available on East Staffordshire Borough Council website. A highly desirable location with a good range of local amenities and transport links. Draft Sales Details These sales details are awaiting vendor approval. Tenure: Freehold. Vacant possession upon completion. Auction Details The sale of this property will take place on the stated date by way of Auction Event and is being sold under an Unconditional sale type. Binding contracts of sale will be exchanged at the point of sale. All sales are subject to SDL Property Auctions Buyers Terms. Properties located in Scotland will be subject to applicable Scottish law. Auction Deposit and Fees The following deposits and non- refundable auctioneers fees apply: • 5% deposit (subject to a minimum of £5,000) • Buyers Fee of 4.8% of the purchase price (subject to a minimum of £6,000 inc. VAT). The Buyers Fee does not contribute to the purchase price, however it will be taken into account when calculating the Stamp Duty Land Tax for the property (known as Land and Buildings Transaction Tax for properties located in Scotland), because it forms part of the chargeable consideration for the property. There may be additional fees listed in the Special Conditions of Sale, which will be available to view within the Legal Pack. You must read the Legal Pack carefully before bidding. Additional Information For full details about all auction methods and sale types please refer to the Auction Conduct Guide which can be viewed on the SDL Property Auctions home page. This guide includes details on the auction registration process, your payment obligations and how to view the Legal Pack (and any applicable Home Report for residential Scottish properties). Guide Price & Reserve Price Each property sold is subject to a Reserve Price. The Reserve Price will be within + or - 10% of the Guide Price. The Guide Price is issued solely as a guide so that a buyer can consider whether or not to pursue their interest. A full definition can be found within the Buyers Terms.

Location
Land Adj. to Homestead, Harehedge Lane, Burton-On-Trent, Staffordshire DE13 0AS
More Information
Freehold
Harehedge Lane
Land
Planing Authority
East Staffordshire LPA

Interested in this lot?

GO TO THIS LOT

More Listings from this Auctioneer

Other listings nearby