Back to properties

Homestead, Harehedge Lane, Burton-On-Trent, Staffordshire DE13 0AS

Homestead, Harehedge Lane, Burton-On-Trent, Staffordshire DE13 0AS

£250,000
Residential
About this Property
2025-10-29
250000
Traditional
Residential
Description

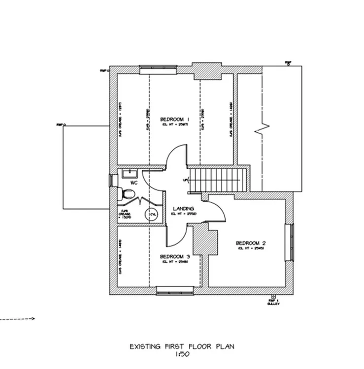
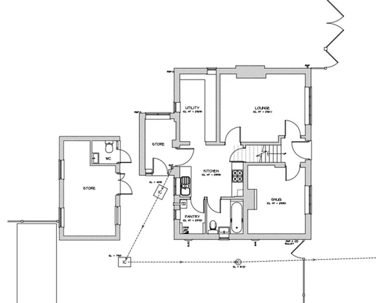
Detached house Property Description: A 3-4 bedroom detached house in a popular and desirable location. The property offers versatile accommodation along with ample parking to the front and garden to rear with outbuildings. Situated in a highly desirable location with good local amenities and excellent transport links. A great investment opportunity to make a lovely family home. A building plot to the right hand side of the house will be sold in the same auction. The main house and building plot will share an initial vehicle access but there is scope to add a private driveway, subject to dropped kerb permission. Reception Hallway With stairs off. Lounge 4.52m x 3.64m With window to front aspect and radiator. Sitting Room / Bedroom Four 3.64m x 3.05m Window to front and radiator. Kitchen 3.34m x 2.75m With base and wall units, built in oven and hob, work surfaces with inset sink. Understairs cupboard, walk in pantry, window to rear and door to rear lobby. Utility Room 3.58m x 1.92m With base and wall units, work surfaces, radiator and window to rear. Bathroom Comprising low flush w.c. wash hand basin and panel bath with shower over. Heated towel rail, tiled floor and walls and window to side. Landing Cloaks / w.c. Having low flush w.c and wash hand basin. Window to rear. Bedroom One 5.85m x 3.64m With radiator and window to front. Bedroom Two 3.45m x 3.06m With radiator and window to front. Bedroom Three Having radiator and window to side. Outside Large plot with parking to front. Space to side which may offer scope for a double garage (subject to permission). Brick outbuildings to rear along with large patio and lawns. Draft Sales Details These sales details are awaiting vendor approval. Tenure: Freehold. Vacant possession upon completion. Utilities Information Heating Supply: Double Glazing, Gas Central Electric Supply: Mains Supply Water Supply: Mains Supply Sewerage Arrangements: Mains Supply Parking Arrangements Garage Auction Details The sale of this property will take place on the stated date by way of Auction Event and is being sold under an Unconditional sale type. Binding contracts of sale will be exchanged at the point of sale. All sales are subject to SDL Property Auctions Buyers Terms. Properties located in Scotland will be subject to applicable Scottish law. Auction Deposit and Fees The following deposits and non- refundable auctioneers fees apply: • 5% deposit (subject to a minimum of £5,000) • Buyers Fee of 4.8% of the purchase price (subject to a minimum of £6,000 inc. VAT). The Buyers Fee does not contribute to the purchase price, however it will be taken into account when calculating the Stamp Duty Land Tax for the property (known as Land and Buildings Transaction Tax for properties located in Scotland), because it forms part of the chargeable consideration for the property. There may be additional fees listed in the Special Conditions of Sale, which will be available to view within the Legal Pack. You must read the Legal Pack carefully before bidding. Additional Information For full details about all auction methods and sale types please refer to the Auction Conduct Guide which can be viewed on the SDL Property Auctions home page. This guide includes details on the auction registration process, your payment obligations and how to view the Legal Pack (and any applicable Home Report for residential Scottish properties). Guide Price & Reserve Price Each property sold is subject to a Reserve Price. The Reserve Price will be within + or - 10% of the Guide Price. The Guide Price is issued solely as a guide so that a buyer can consider whether or not to pursue their interest. A full definition can be found within the Buyers Terms.

Location
Homestead, Harehedge Lane, Burton-On-Trent, Staffordshire DE13 0AS
More Information
Freehold
Harehedge Lane
Detached house
Planing Authority
East Staffordshire LPA

Interested in this lot?

GO TO THIS LOT

More Listings from this Auctioneer

Other listings nearby