Land Between, 99 & 101 St Johns Road, Walthamstow, Waltham Forest, E17 4JH

Land Between, 99 & 101 St Johns Road, Walthamstow, Waltham Forest, E17 4JH

£225,000
Land
Available
About this Property
25 March 2026
25 March 2026
Available
£225,000
Traditional
Land
Description

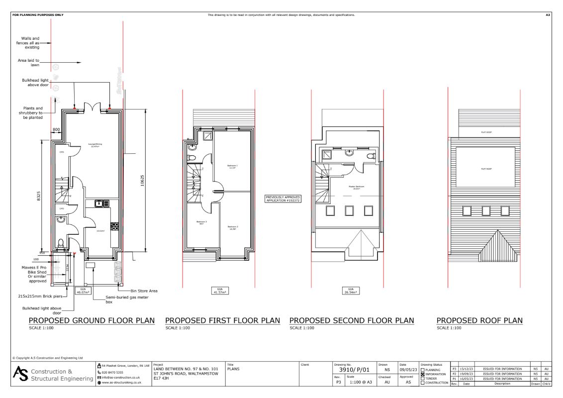
This property is a residential plot of land comprising approximately 1,700 sq ft, located between two end-of-terrace properties. Full planning permission has been granted for the construction of a two-storey dwelling house with four bedrooms, including roof accommodation. The planning consent is valid until 2027, and the site is situated in a residential area primarily characterized by Victorian and Edwardian terraced housing.

Location
Map location for Land Between, 99 & 101 St Johns Road, Walthamstow, Waltham Forest, E17 4JH
More Information
Saint John's Road
Planning Authority
Waltham Forest LPA
Property History
25 Feb 2026Withdrawn Lot Town and Country Franchise Ltd£225,000

Interested in this lot?

GO TO THIS LOT

More Listings from this Auctioneer

DISCLAIMER

No Affiliation: PropertyAuctions.io is an independent service and is not affiliated with, endorsed by, or connected to any auction house, auctioneer, or property owner listed on this site.

Information Accuracy: All property information, including auction dates, descriptions, images, and pricing, is provided for informational purposes only and may contain errors or be outdated. We make no guarantee regarding accuracy or completeness.

Third-Party Content: Property images and descriptions are sourced from publicly available information. We do not claim ownership of content that may be copyrighted by auction houses or other parties.

Your Responsibility: You must verify all information directly with the relevant auction house before bidding or making any decisions. PropertyAuctions.io is not liable for any errors, omissions, or losses arising from use of this website.

Report Issues: If you spot an error or have copyright concerns, please report it here.

View Full Terms and Conditions