The Blue Bell Inn, 157 Mansfield Road, Sutton-In-Ashfield, Nottinghamshire, NG17 4HG

The Blue Bell Inn, 157 Mansfield Road, Sutton-In-Ashfield, Nottinghamshire, NG17 4HG

£200,000
Mixed Use
Available
About this Property
2026-01-28
Available
£200,000
Traditional
Mixed Use
Description

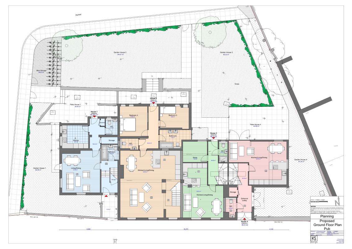
The property is a former pub with planning permission granted to convert the existing building into four dwellings and to erect four additional four-bedroom dwellings at the rear. It is a freehold property located in an area with access to local schools, shops, and transport links.

Location
The Blue Bell Inn, 157 Mansfield Road, Sutton-In-Ashfield, Nottinghamshire, NG17 4HG
More Information
Freehold
Mansfield Road
Planning Authority
Ashfield LPA
Property History
23 Jul 2025Withdrawn Lot Town and Country Franchise Ltd£326,000
28 Aug 2025Withdrawn Lot Town and Country Franchise Ltd£250,000
24 Sep 2025Unsold Lot Town and Country Franchise Ltd£250,000
10 Dec 2025Unsold Lot Town and Country Franchise Ltd£200,000

Interested in this lot?

GO TO THIS LOT
DISCLAIMER

No Affiliation: PropertyAuctions.io is an independent service and is not affiliated with, endorsed by, or connected to any auction house, auctioneer, or property owner listed on this site.

Information Accuracy: All property information, including auction dates, descriptions, images, and pricing, is provided for informational purposes only and may contain errors or be outdated. We make no guarantee regarding accuracy or completeness.

Third-Party Content: Property images and descriptions are sourced from publicly available information. We do not claim ownership of content that may be copyrighted by auction houses or other parties.

Your Responsibility: You must verify all information directly with the relevant auction house before bidding or making any decisions. PropertyAuctions.io is not liable for any errors, omissions, or losses arising from use of this website. Report Issues: If you spot an error or have copyright concerns, please report it here.

View Full Terms and Conditions

More Listings from this Auctioneer