The Crown, 1 The Green, Great Horwood, Milton Keynes, Buckinghamshire, MK17 0RH

The Crown, 1 The Green, Great Horwood, Milton Keynes, Buckinghamshire, MK17 0RH

£325,000
Mixed Use
Withdrawn
About this Property
2025-04-30
Withdrawn
£325,000
Traditional
Mixed Use
£345,000
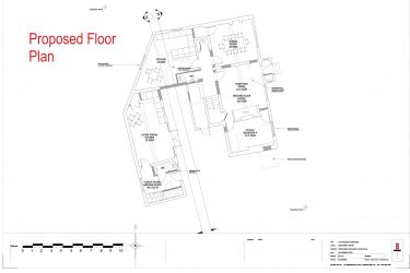
Description

The property is a Grade II listed building that was previously a public house. It has been granted planning permission for conversion into a 4-bedroom house with a 2-bedroom annex. Internal renovations are required, and the property has undergone some structural improvements, including a fully restored roof. The attic has the potential for three additional rooms, subject to the necessary consents. The property is currently classified as commercial but has permission for residential use. The tenure is freehold.

Location
The Crown, 1 The Green, Great Horwood, Milton Keynes, Buckinghamshire, MK17 0RH
More Information
Freehold
The Green
Planning Authority
Aylesbury Vale LPA
Property History
24 Sep 2024Withdrawn Lot Savills plc£450,000
08 Oct 2024Withdrawn Lot Savills plc£450,000
26 Feb 2025Withdrawn Lot Town and Country Franchise Ltd£380,000

Interested in this lot?

GO TO THIS LOT
DISCLAIMER

No Affiliation: PropertyAuctions.io is an independent service and is not affiliated with, endorsed by, or connected to any auction house, auctioneer, or property owner listed on this site.

Information Accuracy: All property information, including auction dates, descriptions, images, and pricing, is provided for informational purposes only and may contain errors or be outdated. We make no guarantee regarding accuracy or completeness.

Third-Party Content: Property images and descriptions are sourced from publicly available information. We do not claim ownership of content that may be copyrighted by auction houses or other parties.

Your Responsibility: You must verify all information directly with the relevant auction house before bidding or making any decisions. PropertyAuctions.io is not liable for any errors, omissions, or losses arising from use of this website. Report Issues: If you spot an error or have copyright concerns, please report it here.

View Full Terms and Conditions

More Listings from this Auctioneer

Other listings nearby