The Crown, 1 The Green, Great Horwood, Milton Keynes, Buckinghamshire, MK17 0RH

The Crown, 1 The Green, Great Horwood, Milton Keynes, Buckinghamshire, MK17 0RH

£380,000
Commercial
Withdrawn
About this Property
2025-02-26
Withdrawn
£380,000
Traditional
Commercial
Description

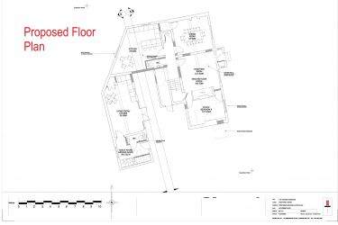
This Grade II listed property is located in the center of a village and overlooks a village green. It has been granted a change of use to develop into a 4-bedroom property with a 2-bedroom annex, although conversion works are incomplete and internal renovations are required. The property has undergone extensive renovations, including a fully restored roof, and has attic space with potential for 3 additional rooms, subject to consents. The property is currently classified as commercial but has planning permission for residential use. It is freehold.

Location
The Crown, 1 The Green, Great Horwood, Milton Keynes, Buckinghamshire, MK17 0RH
More Information
Freehold
The Green
Planning Authority
Aylesbury Vale LPA
Property History
24 Sep 2024Withdrawn Lot Savills plc£450,000
08 Oct 2024Withdrawn Lot Savills plc£450,000
30 Apr 2025Withdrawn Lot Town and Country Franchise Ltd£345,000

Interested in this lot?

GO TO THIS LOT
DISCLAIMER

No Affiliation: PropertyAuctions.io is an independent service and is not affiliated with, endorsed by, or connected to any auction house, auctioneer, or property owner listed on this site.

Information Accuracy: All property information, including auction dates, descriptions, images, and pricing, is provided for informational purposes only and may contain errors or be outdated. We make no guarantee regarding accuracy or completeness.

Third-Party Content: Property images and descriptions are sourced from publicly available information. We do not claim ownership of content that may be copyrighted by auction houses or other parties.

Your Responsibility: You must verify all information directly with the relevant auction house before bidding or making any decisions. PropertyAuctions.io is not liable for any errors, omissions, or losses arising from use of this website. Report Issues: If you spot an error or have copyright concerns, please report it here.

View Full Terms and Conditions

More Listings from this Auctioneer

Other listings nearby