Back to properties

MIXED USE | £21,540 pa | SHIREHAMPTON, 2 bedroom, Commercial - 34255808

18, High Street, Shirehampton, BS11 0DP

£150,000
Commercial
About this Property
2025-11-19
150000
Traditional
Commercial
Description

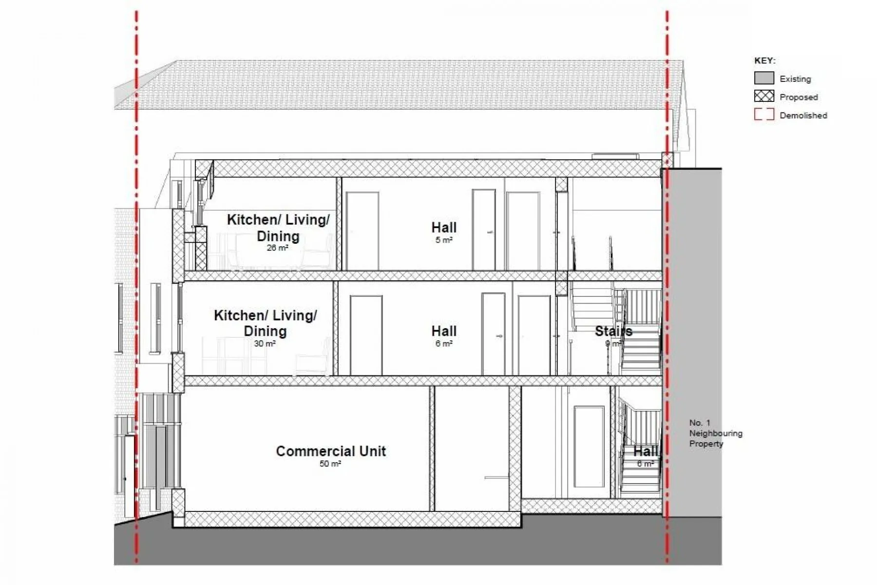
ADDRESS | 18 High Street, Shirehampton, Bristol BS11 0DP Lot Number TBC *** PLEASE NOTE NEW AUCTION START TIME - NOW 12:00 *** The Live Online Auction is on Wednesday 10th December 2025 @ 12:00 Noon Registration Deadline is on Friday 5th December 2025 @ 16:00 The Auction will be streamed LIVE ONLINE via the Hollis Morgan website & you can chose to bid by telephone, proxy or via your computer. Registration is a simple online process – please visit the Hollis Morgan auction website and click “REGISTER TO BID” A prominent Freehold mixed use corner property ( 1445 Sq Ft ) arranged as ground floor retail unit, self contained 2 bedroom flat and stone built semi detached workshop to rear. Sold subject to existing tenants. Tenure - Freehold Council Tax - A EPC - Commercial C | Residential D MIXED USE INVESTMENT | £21,540 pa Both elements of the property are let producing £21,540 pa Commercial Tenant ( includes workshop to rear ) 5 year term commenced 16 June 2023 Rent @ £12,000 p.a. Residential Tenant Tenant in situ since 23 September 2021. Periodic AST @ £795 pcm | £9,540 pa DEVELOPMENT POTENTIAL The workshop and rear section of the retail unit may offers scope for a residential dwelling. Subject to gaining the necessary consents. What rent can we achieve for you? The Bristol Residential Letting Co. are confident this property would make a good rental investment if brought to a standard suitable for the professional rental market. Danny Dean of The Bristol Residential Letting Co suggests a rent in the region of; 18, High Street, 2 bed flat – £1000pcm - £1100pcm If you would like to discuss more detail on the potential for rental, you can call me on 07738766640 or email ([email protected]) for a no obligation discussion. I am always happy to advise investors on maximising their investment. Ewan Kilgour Davies & Partners 01454 611 355 [email protected] https://daviesandpartners.com EXTENDED COMPLETION Completion is set for 8 weeks or earlier subject to mutual consent.

Location
MIXED USE | £21,540 pa | SHIREHAMPTON, 2 bedroom, Commercial - 34255808
More Information
Freehold
High Street
Commercial
Planing Authority
Bristol, City of LPA
Sold Price History
19 Nov 2025Available Lot Hollis Morgan£150,000

Interested in this lot?

GO TO THIS LOT

More Listings from this Auctioneer

Other listings nearby