Development Site @ 100, Walton Road, Clevedon, BS21 6AN

Development Site @ 100, Walton Road, Clevedon, BS21 6AN

£599,950
Mixed Use
Available
About this Property
20 May 2026
Available
£599,950
Traditional
Mixed Use
Description

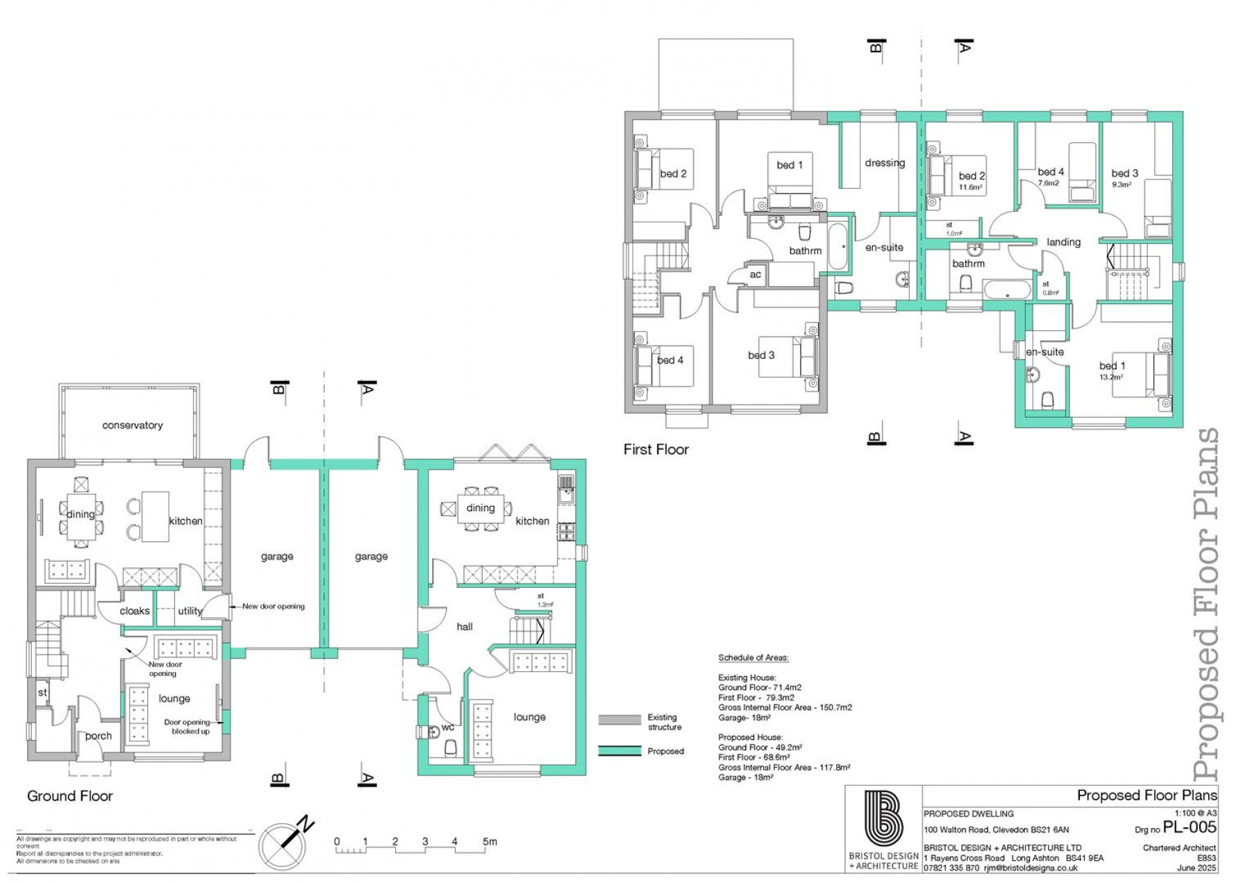
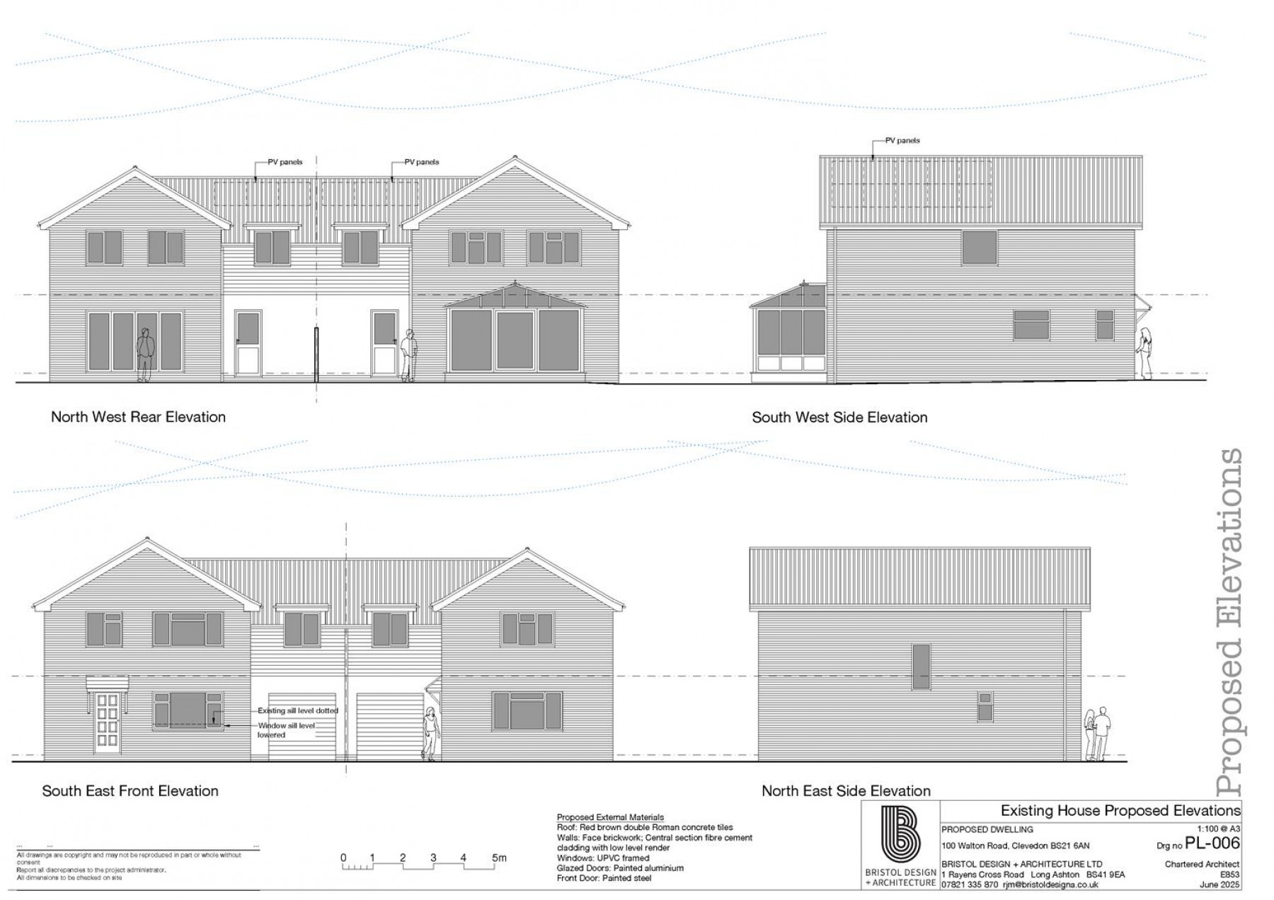
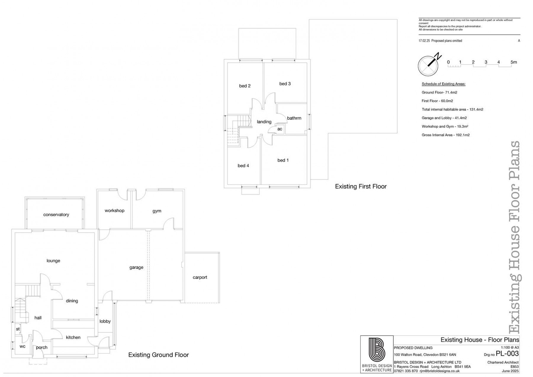
This freehold property is a development site located in Clevedon, featuring an existing four-bedroom detached house situated on a plot of approximately 0.2 acres. The property includes a double garage and workshop. Detailed planning consent has been granted for the extension of the existing dwelling and the construction of an additional four-bedroom semi-detached house. The existing house has a gross internal area (GIA) of 1,414 sq ft, with a total GIA of 2,068 sq ft when including the garage and outbuildings. The proposed renovations for the existing house will yield a GIA of 1,622 sq ft, while the new build will have a GIA of 1,268 sq ft. The estimated gross development value (GDV) for the completed projects ranges from £1,150,000 to £1,200,000. The property is located in the Swiss Valley area, close to Clevedon Secondary School and Clevedon Golf Club, with the town centre and local amenities within walking distance. The property is being sold with vacant possession.

Location
Map location for Development Site @ 100, Walton Road, Clevedon, BS21 6AN
More Information
Freehold
Planning Authority
North Somerset LPA
Property Intelligence

Interested in this lot?

GO TO THIS LOT

More Listings from this Auctioneer

DISCLAIMER

No Affiliation: PropertyAuctions.io is an independent service and is not affiliated with, endorsed by, or connected to any auction house, auctioneer, or property owner listed on this site.

Information Accuracy: All property information, including auction dates, descriptions, images, and pricing, is provided for informational purposes only and may contain errors or be outdated. We make no guarantee regarding accuracy or completeness.

Third-Party Content: Property images and descriptions are sourced from publicly available information. We do not claim ownership of content that may be copyrighted by auction houses or other parties.

Your Responsibility: You must verify all information directly with the relevant auction house before bidding or making any decisions. PropertyAuctions.io is not liable for any errors, omissions, or losses arising from use of this website.

Report Issues: If you spot an error or have copyright concerns, please report it here.

View Full Terms and Conditions