Ty Mawn, Llanberis, Gwynedd, LL55 4SR

Ty Mawn, Llanberis, Gwynedd, LL55 4SR

£125,000
Mixed Use
Available
About this Property
25 February 2026
25 February 2026
Available
£125,000
Traditional
Mixed Use
Description

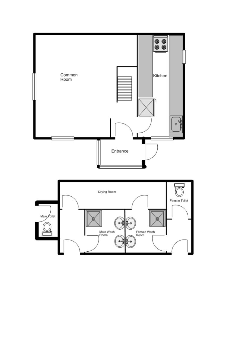
A detached two-bedroom cottage of traditional stone construction with rendered elevations under a slate roof, constructed circa 1860 or earlier. The property includes a separate detached outbuilding and is located in an upland area outside the village of Llanberis within Eryri National Park, offering views of Yr Wyddfa and Llyn Padarn. It features a ground floor with an entrance porch, living room, kitchen, and two bedrooms. There is also a rear shower block with a ladies' WC, shower block, drying room, storage, and outside WC, as well as an open rough grassed area. The property has mains electricity, water from an upland spring, and drainage to a septic tank.

Location
Ty Mawn, Llanberis, Gwynedd, LL55 4SR
More Information
Not Specified
Planning Authority
Gwynedd

Interested in this lot?

GO TO THIS LOT
DISCLAIMER

No Affiliation: PropertyAuctions.io is an independent service and is not affiliated with, endorsed by, or connected to any auction house, auctioneer, or property owner listed on this site.

Information Accuracy: All property information, including auction dates, descriptions, images, and pricing, is provided for informational purposes only and may contain errors or be outdated. We make no guarantee regarding accuracy or completeness.

Third-Party Content: Property images and descriptions are sourced from publicly available information. We do not claim ownership of content that may be copyrighted by auction houses or other parties.

Your Responsibility: You must verify all information directly with the relevant auction house before bidding or making any decisions. PropertyAuctions.io is not liable for any errors, omissions, or losses arising from use of this website.

Report Issues: If you spot an error or have copyright concerns, please report it here.

View Full Terms and Conditions

More Listings from this Auctioneer

Other listings nearby