The Yarcombe Inn, Yarcombe, Honiton, Devon, EX14 9BD

The Yarcombe Inn, Yarcombe, Honiton, Devon, EX14 9BD

£200,000
Commercial
Sold
About this Property
10 September 2020
Sold
£200,000
Traditional
Commercial
Description

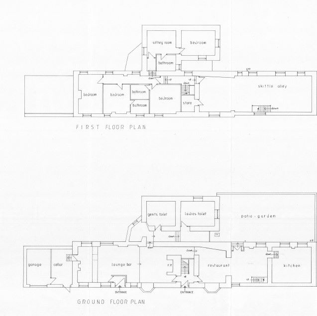
Substantial 2-storey public house with a restaurant, function suite, and manager's flat located in the Blackdown Hills. The Grade II listed property features internal areas with flagstone floors and wood-paneled walls. The first-floor function suite can accommodate approximately 100 guests. The property has been modernized and has potential for conversion to additional letting rooms, subject to planning. It is a freehold commercial property.

Location
More Information
Freehold
Planning Authority
East Devon LPA
Address History
12 Oct 1995Sold£97,500
15 Jan 2007Sold£495,000
25 Sep 2020Sold£235,000

Interested in this lot?

GO TO THIS LOT

More Listings from this Auctioneer

Other listings nearby

DISCLAIMER

No Affiliation: PropertyAuctions.io is an independent service and is not affiliated with, endorsed by, or connected to any auction house, auctioneer, or property owner listed on this site.

Information Accuracy: All property information, including auction dates, descriptions, images, and pricing, is provided for informational purposes only and may contain errors or be outdated. We make no guarantee regarding accuracy or completeness.

Third-Party Content: Property images and descriptions are sourced from publicly available information. We do not claim ownership of content that may be copyrighted by auction houses or other parties.

Your Responsibility: You must verify all information directly with the relevant auction house before bidding or making any decisions. PropertyAuctions.io is not liable for any errors, omissions, or losses arising from use of this website.

Report Issues: If you spot an error or have copyright concerns, please report it here.

View Full Terms and Conditions