8 Yorick Road, West Mersea, Colchester, Essex, CO5 8HT

8 Yorick Road, West Mersea, Colchester, Essex, CO5 8HT

£225,000
Mixed Use
Sold
About this Property
13 May 2025
13 May 2025
Sold
£225,000
Traditional
Mixed Use
£250,000
Description

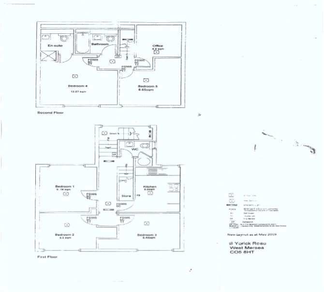
The property is a detached commercial shop with two upper floors comprising five rooms. The ground floor was previously used as a restaurant, and there is a rear courtyard garden. The upper floors were formerly licensed as a five-bedroom HMO, allowing for potential commercial and residential use. The top floor has sea views.

Location
More Information
Freehold
Planning Authority
Colchester LPA
Address History
26 Oct 2000Sold£125,000
27 May 2009Sold£140,000
27 Feb 2025Unsold Lot Swift Property Auctions£250,000
27 Feb 2025Sold Lot Swift Property Auctions£274,000
13 May 2025Sold Lot Swift Property Auctions£250,000
15 Jul 2025Sold£250,000

Interested in this lot?

GO TO THIS LOT

More Listings from this Auctioneer

Other listings nearby

DISCLAIMER

No Affiliation: PropertyAuctions.io is an independent service and is not affiliated with, endorsed by, or connected to any auction house, auctioneer, or property owner listed on this site.

Information Accuracy: All property information, including auction dates, descriptions, images, and pricing, is provided for informational purposes only and may contain errors or be outdated. We make no guarantee regarding accuracy or completeness.

Third-Party Content: Property images and descriptions are sourced from publicly available information. We do not claim ownership of content that may be copyrighted by auction houses or other parties.

Your Responsibility: You must verify all information directly with the relevant auction house before bidding or making any decisions. PropertyAuctions.io is not liable for any errors, omissions, or losses arising from use of this website.

Report Issues: If you spot an error or have copyright concerns, please report it here.

View Full Terms and Conditions