Land at the Rear of 125 Friern Barnet Road, Friern Barnet, London, Barnet, N11 3DY

Land at the Rear of 125 Friern Barnet Road, Friern Barnet, London, Barnet, N11 3DY

£195,000
Land
Withdrawn
About this Property
26 March 2026
26 March 2026
Withdrawn
£195,000
Traditional
Land
Description

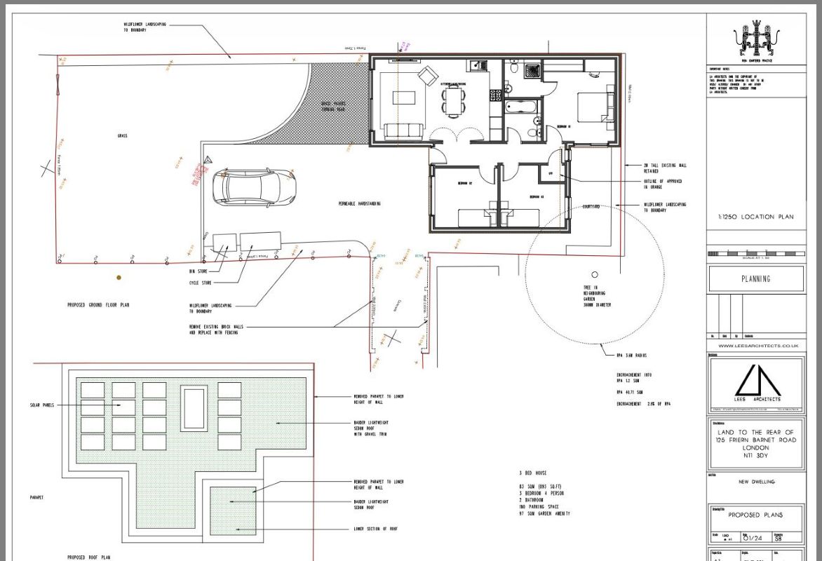
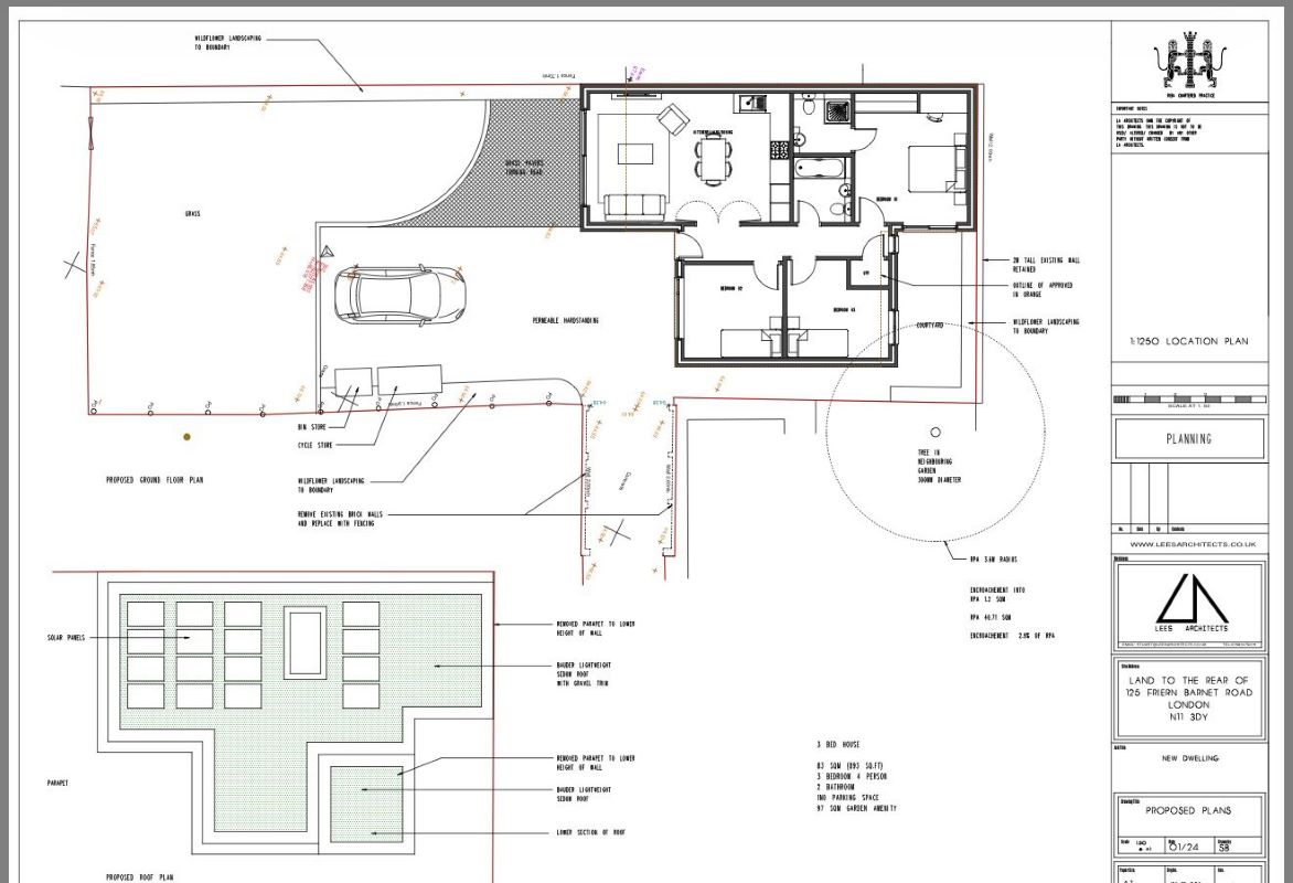
A freehold vacant site measuring approximately 4,130 sq ft, located to the rear of Friern Barnet Road (A1003) in an established residential area of North London. The site has planning permission granted by the London Borough of Barnet under reference 24/0256/FUL for the erection of a single-storey dwelling comprising three bedrooms, two bathrooms, an open-plan kitchen/living/dining area, a private garden, and off-street parking. Local shopping facilities and amenities are available along Friern Barnet Road and in nearby Whetstone and North Finchley, with larger retail and leisure options at Brent Cross Shopping Centre and Wood Green. Transport connections include New Southgate (National Rail) and Arnos Grove Underground Station (Piccadilly Line), providing access to Central London, and the A406 North Circular Road is also nearby, facilitating access to the wider road network.

Location
Map location for Land at the Rear of 125 Friern Barnet Road, Friern Barnet, London, Barnet, N11 3DY
More Information
Freehold
Planning Authority
Barnet LPA
Property Intelligence

Interested in this lot?

GO TO THIS LOT

More Listings from this Auctioneer

Other listings nearby

DISCLAIMER

No Affiliation: PropertyAuctions.io is an independent service and is not affiliated with, endorsed by, or connected to any auction house, auctioneer, or property owner listed on this site.

Information Accuracy: All property information, including auction dates, descriptions, images, and pricing, is provided for informational purposes only and may contain errors or be outdated. We make no guarantee regarding accuracy or completeness.

Third-Party Content: Property images and descriptions are sourced from publicly available information. We do not claim ownership of content that may be copyrighted by auction houses or other parties.

Your Responsibility: You must verify all information directly with the relevant auction house before bidding or making any decisions. PropertyAuctions.io is not liable for any errors, omissions, or losses arising from use of this website.

Report Issues: If you spot an error or have copyright concerns, please report it here.

View Full Terms and Conditions