17 Nott Square, Carmarthen, SA31 1PQ

17 Nott Square, Carmarthen, SA31 1PQ

£54,000
Commercial
Unsold
About this Property
16 December 2025
18 December 2025
Unsold
£54,000
Traditional
Commercial
Description

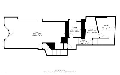
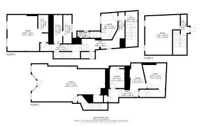
A three-storey, double-fronted retail property with ancillary accommodation on the upper floors. The ground floor currently generates an income of £5,400 per annum. The upper floors have been used for ancillary purposes, with potential for residential use, subject to planning consent. The total area of the property is 2,186 sq ft (203.10 sq m), with various designated spaces including sales, storage, and staff areas. The property is classified as 'Shop and premises' with a current rateable value of £10,750. The property is advised to be freehold.

Location
Map location for 17 Nott Square, Carmarthen, SA31 1PQ
More Information
Freehold
Planning Authority
Carmarthenshire
Address History
15 Jun 1998Sold£235,000
14 May 2024Sold Lot Paul Fosh Auctions Limited£109,000
18 Jun 2024Sold Lot Paul Fosh Auctions Limited£92,000
23 Jul 2024Withdrawn Lot Paul Fosh Auctions Limited£1,000
01 Oct 2024Sold Lot Paul Fosh Auctions Limited£96,000
07 Oct 2025Unsold Lot Paul Fosh Auctions Limited£69,000
11 Nov 2025Unsold Lot Paul Fosh Auctions Limited£64,000
03 Feb 2026Unsold Lot Paul Fosh Auctions Limited£54,000
14 Apr 2026Sold Lot Paul Fosh Auctions Limited£54,000

Interested in this lot?

GO TO THIS LOT

Other listings nearby

DISCLAIMER

No Affiliation: PropertyAuctions.io is an independent service and is not affiliated with, endorsed by, or connected to any auction house, auctioneer, or property owner listed on this site.

Information Accuracy: All property information, including auction dates, descriptions, images, and pricing, is provided for informational purposes only and may contain errors or be outdated. We make no guarantee regarding accuracy or completeness.

Third-Party Content: Property images and descriptions are sourced from publicly available information. We do not claim ownership of content that may be copyrighted by auction houses or other parties.

Your Responsibility: You must verify all information directly with the relevant auction house before bidding or making any decisions. PropertyAuctions.io is not liable for any errors, omissions, or losses arising from use of this website.

Report Issues: If you spot an error or have copyright concerns, please report it here.

View Full Terms and Conditions