The Old Station House, Skelton, Skelton-in-Cleveland , TS12 2LW

The Old Station House, Skelton, Skelton-in-Cleveland , TS12 2LW

£135,000
Land
Available
About this Property
30 April 2026
Available
£135,000
Traditional
Land
Description

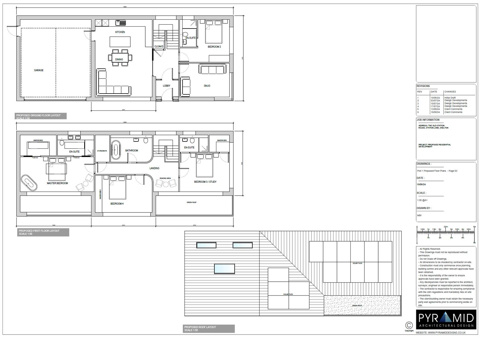
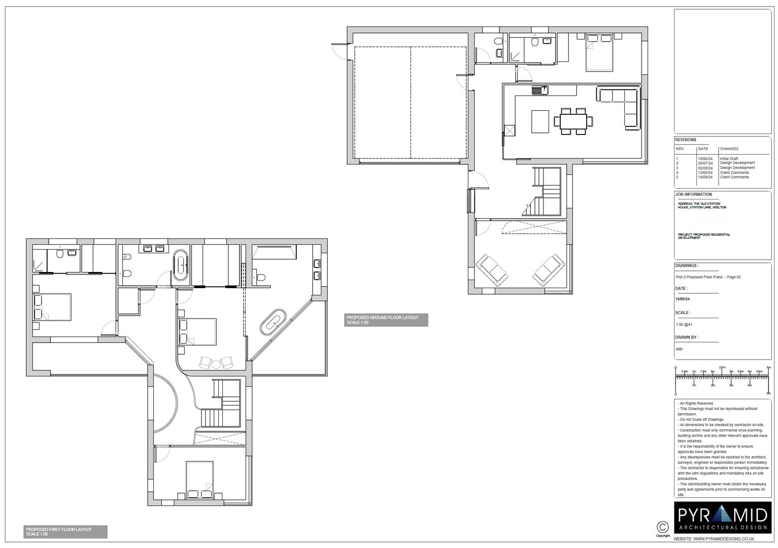
A freehold land plot is available for sale in the village of Skelton, with full planning permission granted for the construction of two detached eco homes, each comprising four bedrooms and three bathrooms. The approved designs prioritize privacy and feature south-facing aspects, including two roof terraces per dwelling. The internal layouts accommodate modern family living and multi-generational arrangements, with one ground floor en-suite room that can also serve as a home office. Each home will also include large double integrated garages. The site benefits from existing connections for gas, drainage, and water. The location is notable for its historical significance as the site of the original village train station. The property is freehold.

Location
Map location for The Old Station House, Skelton, Skelton-in-Cleveland , TS12 2LW
More Information
Freehold
Planning Authority
Redcar and Cleveland LPA

Interested in this lot?

GO TO THIS LOT

More Listings from this Auctioneer

Other listings nearby

DISCLAIMER

No Affiliation: PropertyAuctions.io is an independent service and is not affiliated with, endorsed by, or connected to any auction house, auctioneer, or property owner listed on this site.

Information Accuracy: All property information, including auction dates, descriptions, images, and pricing, is provided for informational purposes only and may contain errors or be outdated. We make no guarantee regarding accuracy or completeness.

Third-Party Content: Property images and descriptions are sourced from publicly available information. We do not claim ownership of content that may be copyrighted by auction houses or other parties.

Your Responsibility: You must verify all information directly with the relevant auction house before bidding or making any decisions. PropertyAuctions.io is not liable for any errors, omissions, or losses arising from use of this website.

Report Issues: If you spot an error or have copyright concerns, please report it here.

View Full Terms and Conditions