The Old Chapel,, Station Road, Hugglescote, Coalville, Leicestershire, LE67 2GB

The Old Chapel,, Station Road, Hugglescote, Coalville, Leicestershire, LE67 2GB

£120,000
Residential
Auction Ended
About this Property
21 May 2025
Auction Ended
£120,000
Traditional
Residential
Description

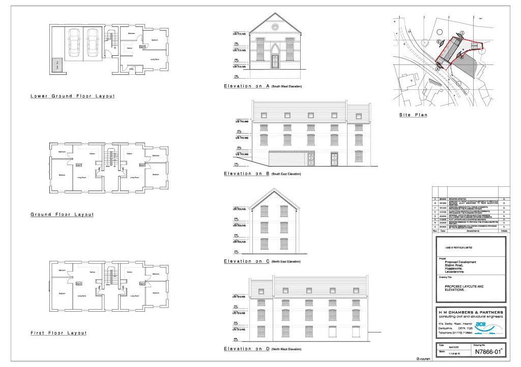
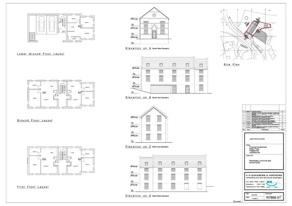
A freehold residential development site extending to 0.11 acres (443 sq.m) is located fronting Station Road. The site has planning consent for the erection of five one-bedroom apartments with ancillary parking and grounds. The site was formerly occupied by a chapel that has been demolished for redevelopment. Mains electricity, gas, water, and sewage services are available on site. The proposed accommodation includes five apartments with floor areas ranging from 50 sqm to 60 sqm.

Location
Map location for The Old Chapel,, Station Road, Hugglescote, Coalville, Leicestershire, LE67 2GB
More Information
Freehold
Planning Authority
North West Leicestershire LPA
Address History
02 Apr 2025Auction Ended Lot Cottons£135,000

Interested in this lot?

GO TO THIS LOT

More Listings from this Auctioneer

Other listings nearby

DISCLAIMER

No Affiliation: PropertyAuctions.io is an independent service and is not affiliated with, endorsed by, or connected to any auction house, auctioneer, or property owner listed on this site.

Information Accuracy: All property information, including auction dates, descriptions, images, and pricing, is provided for informational purposes only and may contain errors or be outdated. We make no guarantee regarding accuracy or completeness.

Third-Party Content: Property images and descriptions are sourced from publicly available information. We do not claim ownership of content that may be copyrighted by auction houses or other parties.

Your Responsibility: You must verify all information directly with the relevant auction house before bidding or making any decisions. PropertyAuctions.io is not liable for any errors, omissions, or losses arising from use of this website.

Report Issues: If you spot an error or have copyright concerns, please report it here.

View Full Terms and Conditions