Back to properties

Property for Auction in West Yorkshire - Land opposite 130/130a, Town Street , Stanningley , Leeds, West Yorkshire LS28 6ER

Land opposite 130/130a, Town Street , Stanningley , Leeds, West Yorkshire LS28 6ER

£70,000
Land
About this Property
2025-10-22
70000
Traditional
Land
Description

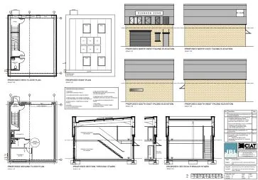
Sure to appeal to any developers looking for a modest project, this parcel of land with gated access is now offered with recently approved planning permission for a detached commercial/light industrial business unit. Any interested parties looking for further information are advised to visit the Leeds planning portal searching reference 25/02525/FU.

The land is located in the heart of Stanningley just six miles to the west of Leeds city centre. Additional Information Council Tax Leeds City Council Tenure Freehold Charges and Payments In addition to the deposit Administration Charge: 1.2% inc VAT of the purchase price subject to a minimum of £1,500 inc VAT. Important Notice to Prospective Buyers: We draw your attention to the Special Conditions of Sale within the Legal Pack, referring to other charges in addition to the purchase price which may become payable. Such costs may include Search Fees, reimbursement of Sellers costs and Legal Fees, and Transfer Fees amongst others. Additional Fees Administration Charge - See above Disbursements - Please see the legal pack for any disbursements listed that may become payable by the purchaser on completion.

Location
Property for Auction in West Yorkshire - Land opposite 130/130a, Town Street , Stanningley , Leeds, West Yorkshire LS28 6ER
More Information
Freehold
Town Street
Land
Planing Authority
Leeds LPA

Interested in this lot?

GO TO THIS LOT

More Listings from this Auctioneer

Other listings nearby