77 Cheshire Road, Smethwick, B67 6DW

77 Cheshire Road, Smethwick, B67 6DW

£49,000
Residential
Available
About this Property
05 February 2026
Available
£49,000
Traditional
Residential
Description

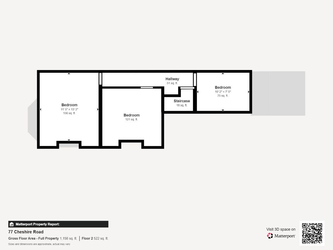
This is a mid-terraced residential property with three bedrooms. The ground floor includes a through reception room, kitchen, and shower room/WC. The first floor features a landing and the three bedrooms. The property has gas-fired central heating and double glazing. There are gardens outside. The property is vacant and has a freehold tenure. The council tax band is B.

Location
77 Cheshire Road, Smethwick, B67 6DW
More Information
Freehold
Cheshire Road
Planning Authority
Sandwell LPA
Property History
04 Mar 2016Sold£92,500
31 Oct 2025Sold£137,000

Interested in this lot?

GO TO THIS LOT
DISCLAIMER

No Affiliation: PropertyAuctions.io is an independent service and is not affiliated with, endorsed by, or connected to any auction house, auctioneer, or property owner listed on this site.

Information Accuracy: All property information, including auction dates, descriptions, images, and pricing, is provided for informational purposes only and may contain errors or be outdated. We make no guarantee regarding accuracy or completeness.

Third-Party Content: Property images and descriptions are sourced from publicly available information. We do not claim ownership of content that may be copyrighted by auction houses or other parties.

Your Responsibility: You must verify all information directly with the relevant auction house before bidding or making any decisions. PropertyAuctions.io is not liable for any errors, omissions, or losses arising from use of this website.

Report Issues: If you spot an error or have copyright concerns, please report it here.

View Full Terms and Conditions

More Listings from this Auctioneer

Other listings nearby