30 Bagnall Street, Ocker Hill, Tipton, DY4 0EB

30 Bagnall Street, Ocker Hill, Tipton, DY4 0EB

£39,000
Residential
Available
About this Property
05 February 2026
Available
£39,000
Traditional
Residential
Description

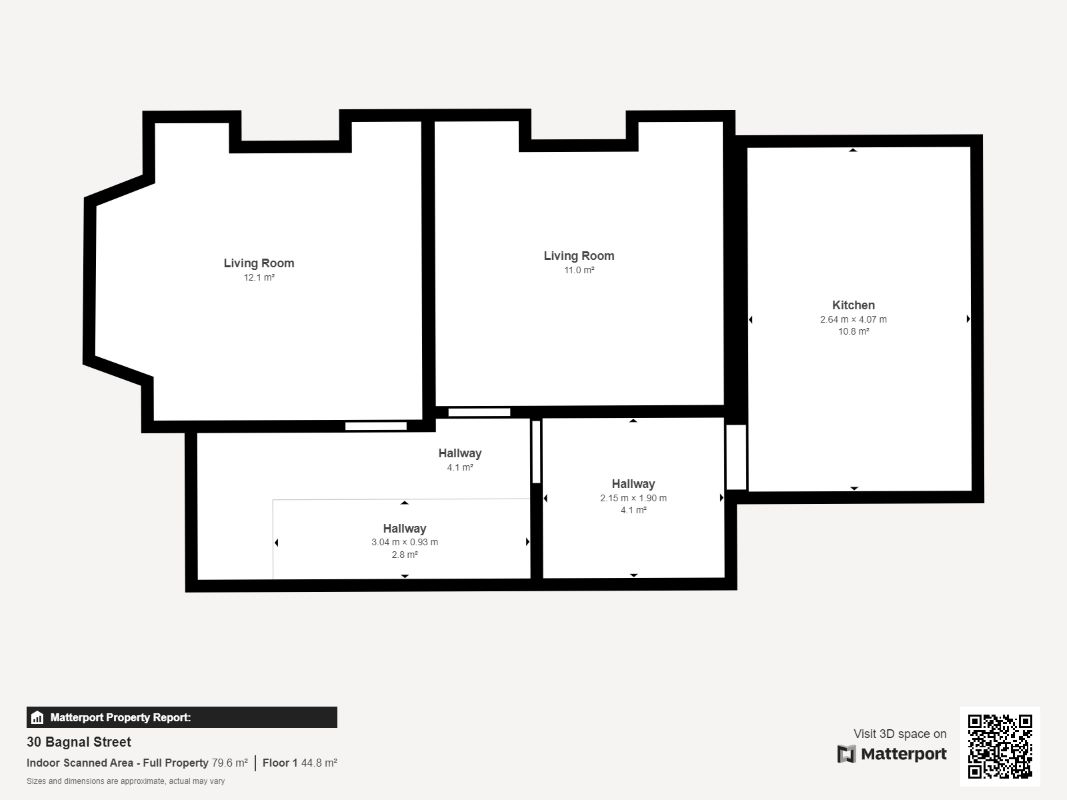
This is a semi-detached residential property with three bedrooms. The ground floor includes a storm porch, hall, two reception rooms, kitchen, pantry, and WC. The first floor has a landing, three bedrooms, and a bathroom/WC. The property features a driveway and gardens, and it has a gas-fired central heating system and UPVC double glazing. The property is in need of modernisation.

Location
30 Bagnall Street, Ocker Hill, Tipton, DY4 0EB
More Information
Freehold
Bagnall Street
Planning Authority
Sandwell LPA
Property History
25 Oct 2004Sold£100,000
23 Apr 2024Sold£142,500
16 May 2024Sold Lot Bond Wolfe£145,000
01 Aug 2024Sold£125,000
19 Nov 2025Unsold Lot Under The Hammer Auctions Limited£100,000

Interested in this lot?

GO TO THIS LOT
DISCLAIMER

No Affiliation: PropertyAuctions.io is an independent service and is not affiliated with, endorsed by, or connected to any auction house, auctioneer, or property owner listed on this site.

Information Accuracy: All property information, including auction dates, descriptions, images, and pricing, is provided for informational purposes only and may contain errors or be outdated. We make no guarantee regarding accuracy or completeness.

Third-Party Content: Property images and descriptions are sourced from publicly available information. We do not claim ownership of content that may be copyrighted by auction houses or other parties.

Your Responsibility: You must verify all information directly with the relevant auction house before bidding or making any decisions. PropertyAuctions.io is not liable for any errors, omissions, or losses arising from use of this website.

Report Issues: If you spot an error or have copyright concerns, please report it here.

View Full Terms and Conditions

More Listings from this Auctioneer

Other listings nearby