1 Glyn Terrace, Tredegar, NP22 4HX

1 Glyn Terrace, Tredegar, NP22 4HX

£90,000
Mixed Use
Available
About this Property
2025-12-16
Available
£90,000
Traditional
Mixed Use
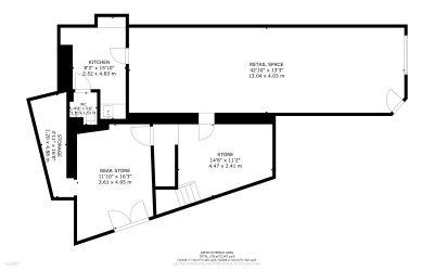
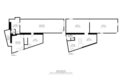
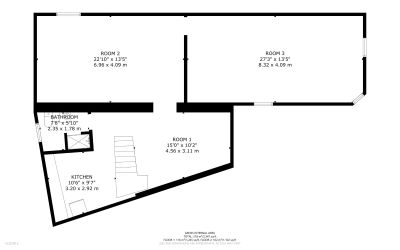
Description

The property is an end of terrace building that was most recently used for commercial purposes. It features an open-plan ground floor with a former shop area, a rear office, and a side room with access to a side street. The first floor includes a large landing and three large rooms, as well as a former bathroom. The property is advised to be freehold.

Location
1 Glyn Terrace, Tredegar, NP22 4HX
More Information
Freehold
Glyn Terrace
Planning Authority
Blaenau Gwent

Interested in this lot?

GO TO THIS LOT
DISCLAIMER

No Affiliation: PropertyAuctions.io is an independent service and is not affiliated with, endorsed by, or connected to any auction house, auctioneer, or property owner listed on this site.

Information Accuracy: All property information, including auction dates, descriptions, images, and pricing, is provided for informational purposes only and may contain errors or be outdated. We make no guarantee regarding accuracy or completeness.

Third-Party Content: Property images and descriptions are sourced from publicly available information. We do not claim ownership of content that may be copyrighted by auction houses or other parties.

Your Responsibility: You must verify all information directly with the relevant auction house before bidding or making any decisions. PropertyAuctions.io is not liable for any errors, omissions, or losses arising from use of this website. Report Issues: If you spot an error or have copyright concerns, please report it here.

View Full Terms and Conditions

More Listings from this Auctioneer

Other listings nearby